IT-0517
Impresionante villa de 4 dormitorios y 3 baños con piscina privada en Pinoso (modelo stone plus-4)
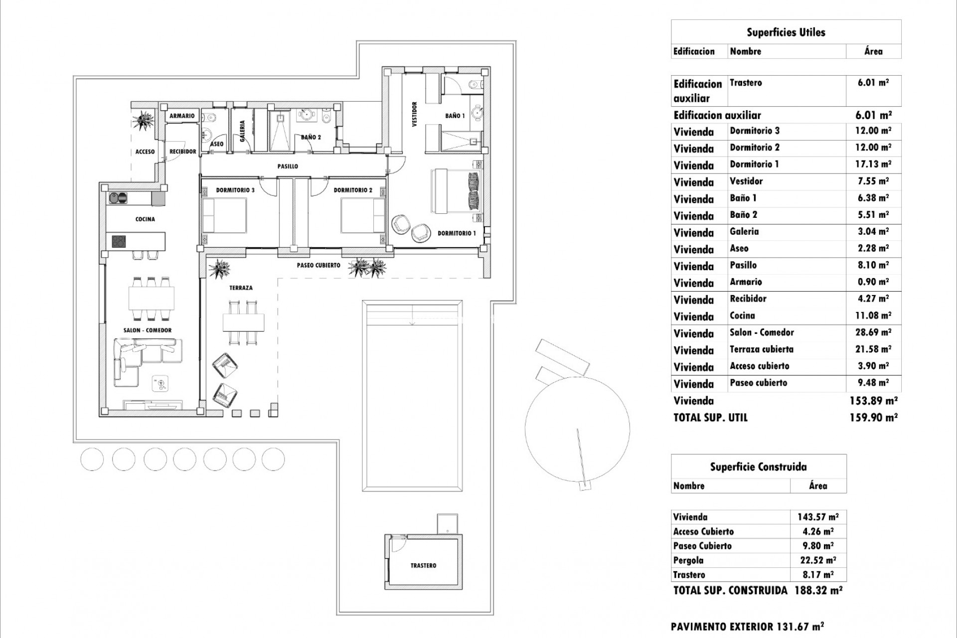
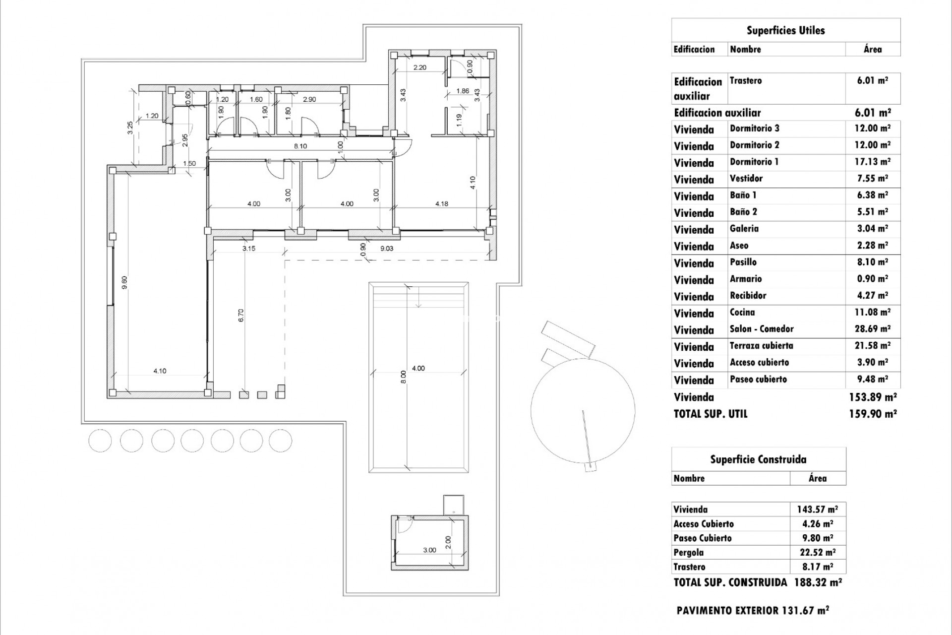
Bienvenidos a esta moderna villa de lujo ubicada en el tranquilo pueblo de Pinoso, que ofrece una oportunidad única para disfrutar de una vida sofisticada en el corazón del campo español. Con 4 amplios dormitorios, 3 baños bellamente diseñados y una piscina privada, esta villa es el epítome de la comodidad, el estilo y la sostenibilidad. Terreno no incluido, desde 50.000 euros.
Construida con los últimos estándares en construcción, la villa cuenta con:
Cimientos y estructura de concreto armado, asegurando una durabilidad excepcional.
Paredes exteriores de ladrillo termoarcilla con excelente aislamiento térmico, terminadas con elegante piedra natural y un acabado monocapa blanco para un aspecto moderno y sofisticado.
Techo plano invertido con aislamiento térmico de alta calidad y protección impermeable.
Entra en un amplio salón que equilibra perfectamente la estética moderna con la funcionalidad:
Carpintería interior que incluye puertas lacadas en blanco, manillas de color acero y armarios empotrados que llegan hasta el techo, ofreciendo un amplio espacio de almacenamiento.
Suelos de cerámica porcelánica premium con opciones personalizables para un acabado elegante y duradero.
Baños sofisticados con accesorios sanitarios de porcelana vitrificada blanca, grifos cromados elegantes y áreas de ducha con pantallas de vidrio fijas.
La cocina es el sueño de todo amante de la gastronomía, equipada con todo lo necesario para crear deliciosos platillos:
Unidades de cocina de alta gama que llegan hasta el techo, con espacios predesignados para electrodomésticos esenciales como frigorífico, lavavajillas y horno.
Encimera de Silestone o similar con isla y preinstalación para campana extractora.
Fregadero de acero inoxidable con grifo cromado de palanca única, facilitando la cocina y la limpieza.
Disfruta del hermoso clima mediterráneo en tu espacio exterior privado:
Piscina privada (8 x 4 metros) terminada con mosaico de cerámica, con una moldura blanca y luces LED que crean el ambiente perfecto.
El área alrededor de la piscina está acabada con concreto impreso e incluye una ducha exterior para mayor comodidad.
Opcional zona de césped artificial (aproximadamente 15 m²), creando un espacio de bajo mantenimiento y belleza para relajarse y entretenerse.
Esta villa ha sido diseñada con la sostenibilidad en mente:
Preinstalación de paneles solares fotovoltaicos para autoconsumo en el solárium.
Preinstalación de aire acondicionado, con conductos ya instalados para fácil colocación en la sala de estar y los dormitorios.
Sistema avanzado de ventilación vertical para mejorar la eficiencia energética y mantener una excelente calidad del aire interior.
Sistema de agua caliente mediante un calentador eléctrico de 100 litros.
Videoportero con pantalla de imagen y preinstalación para iluminación exterior.
Puerta eléctrica de acceso vehicular para facilitar el acceso a la propiedad.
Amplio cuarto de almacenamiento para la bomba de la piscina y otras necesidades de almacenamiento.
Gestión de aguas residuales mediante un tanque séptico de 3,000 litros.
Cerca segura alrededor de toda la parcela con malla de acero galvanizado y una puerta corredera automática para mayor privacidad y seguridad.
Esta villa no solo ofrece todas las comodidades modernas que podrías desear, sino que también garantiza sostenibilidad, eficiencia energética y una experiencia de vida excepcional en una de las regiones más buscadas de España.
¡Contáctanos hoy mismo para más información o para agendar una visita y ver por ti mismo lo que esta increíble villa en Pinoso tiene para ofrecer!
Contacta con Chantal a través de WhatsApp o completa el formulario de contacto.