OGC-20454
Villa de lujo en construcción con vistas al mar en la costa de Benissa (Costa Blanca, Alicante). Esta villa de estilo ibicenco con preciosas vistas al mar se encuentra a 400 metros de la Playa de Fustera, restaurantes y supermercado.
Esta villa tendrá aproximadamente 600m2 y esta situada en una gran parcela de 1.800m2 y será construida con materiales de alta calidad y con vistas al mar desde todas las estancias.
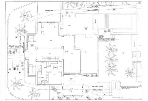
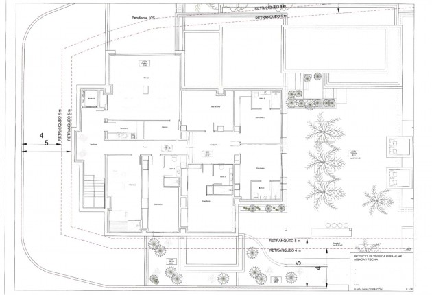
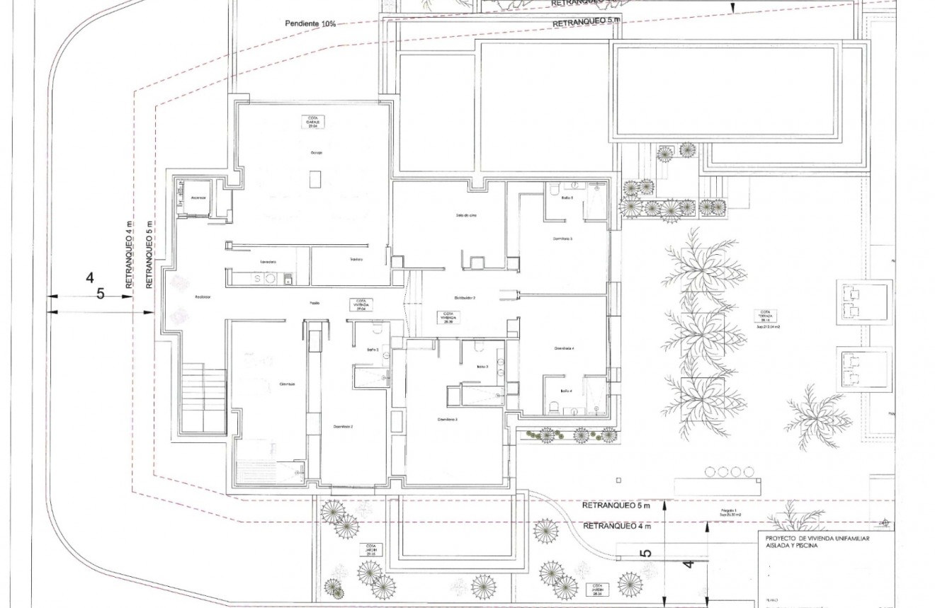
Se distribuye en 2 plantas:
- Planta primera, donde se encuentra la planta principal. Se distribuye en hall de entrada entrada, preciosa cocina abierta totalmente equipada abierta al comedor con acceso a un bonito patio, amplio salón con una acogedora chimenea. Desde esta planta tanto la cocina como el salón y comedor tienen acceso a una terraza y porche exterior y a una pequeña piscina con infinito. En esta misma planta hay un aseo de cortesía y un amplio dormitorio con vestidor y baño en suite con bañera y ducha. El dormitorio también tiene acceso a una terraza.
- Planta baja, a esta planta se puede acceder por una escalera interior o por un ascensor. Se distribuye en un pequeño recibidor, zona de gimnasio, lavadero y trastero, sala de cine y 4 dormitorios con baños en suite. En esta planta también se encuentra el garaje con capacidad para 2 coches.
En el exterior de la planta baja se encuentra la zona de barbacoa cubierta con una pérgola, piscina con infinito y terraza. A esta espacio también se puede acceder desde la planta primera mediante unas escaleras exteriores.
Este increíble proyecto de construcción se empezará a construir en 2025.
Contacta con Chantal a través de WhatsApp o completa el formulario de contacto.