REX-26657
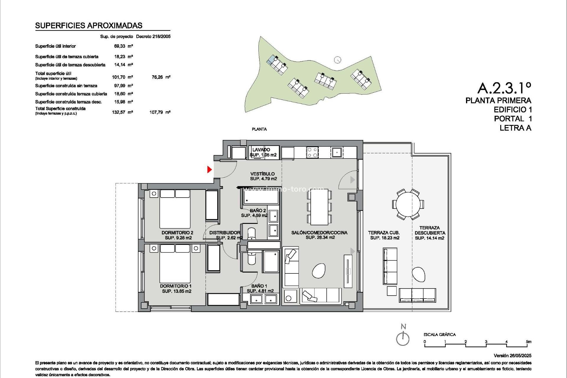
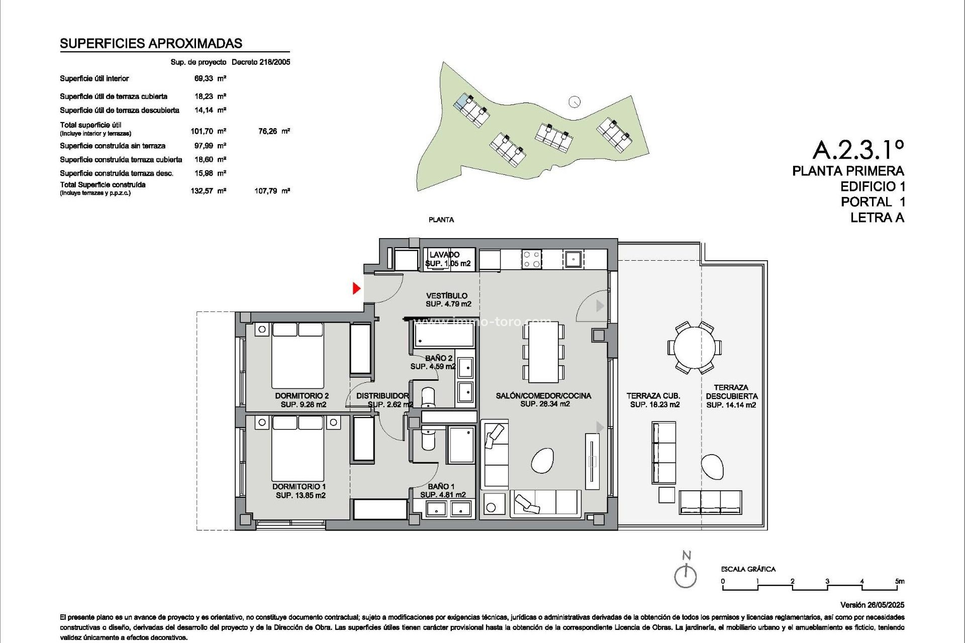
Apartamentos de nueva construcción frente al campo de golf con vistas al mar en La Cala de Mijas Vida residencial exclusiva en primera línea de La Cala Golf Este excepcional complejo residencial de nueva construcción está situado en primera línea del famoso complejo La Cala Golf Resort y ofrece vistas panorámicas al campo de golf y al mar en una de las zonas más codiciadas de la Costa del Sol. Situado en un tranquilo enclave natural, el complejo se encuentra a solo 5 km, unos 10 minutos en coche, de las playas de arena y el animado paseo marítimo de La Cala de Mijas. Esta privilegiada ubicación combina tranquilidad, naturaleza y fácil acceso a la vida costera. Apartamentos modernos diseñados para la vida mediterránea La comunidad cerrada consta de solo 48 apartamentos contemporáneos distribuidos en cuatro edificios de baja altura con planta baja, primera y segunda planta. Las viviendas están disponibles con 2 o 3 dormitorios y se benefician de una codiciada orientación sureste, lo que maximiza la luz natural y las vistas abiertas. Las propiedades de la planta baja y la planta intermedia cuentan con grandes terrazas o áticos con soláriums privados. Algunas plantas bajas y áticos seleccionados tienen la opción de añadir una piscina privada, creando un espacio exterior verdaderamente exclusivo. Interiores de alta calidad y confort inteligente Cada apartamento ha sido diseñado pensando en el confort y la eficiencia. Los interiores cuentan con una sala de estar y comedor de planta abierta con una cocina totalmente amueblada y equipada, creando un espacio luminoso y funcional. Los baños incluyen muebles modernos, espejos y mamparas de ducha fijas. Las viviendas están equipadas con un avanzado sistema de climatización que utiliza tecnología aerotérmica para el agua caliente sanitaria y la calefacción por suelo radiante, así como preinstalación para domótica. Todas las propiedades incluyen plaza de aparcamiento y trastero. Zonas comunes estilo resort Los residentes pueden disfrutar de una completa gama de instalaciones comunes de primera calidad diseñadas para mejorar el bienestar y el ocio. El complejo cuenta con dos piscinas al aire libre, incluida una piscina infinita con zona de tumbonas, jardines paisajísticos y tranquilas zonas de relajación. La completa zona de bienestar incluye un spa con jacuzzi, baño turco, sauna y circuito de hidroterapia. También hay un gimnasio totalmente equipado, un espacio de coworking y un gastrobar privado, que ofrecen el equilibrio perfecto entre trabajo, relajación y vida social. Ubicación privilegiada en la Costa del Sol La Cala de Mijas es una localidad costera muy popular, conocida por su ambiente encantador, sus excelentes restaurantes, sus clubes de playa y sus servicios. La zona también es famosa por sus campos de golf y su entorno natural, lo que la hace ideal para vivir de forma permanente o como inversión. Distancias clave Playa de La Cala de Mijas: 5 km Club de golf La Cala: ubicación en primera línea Marbella y Puerto Banús: 20 km Ciudad de Málaga: 30 km Aeropuerto Internacional de Málaga: 35 km Su nuevo hogar con vistas al campo de golf le espera Si busca un apartamento moderno con vistas al mar y al campo de golf en un entorno seguro y exclusivo, esta nueva promoción en La Cala de Mijas es la elección perfecta. Póngase en contacto con nosotros hoy mismo para obtener más información o concertar una visita y descubrir su futuro hogar en la Costa del Sol.
Contacta con Chantal a través de WhatsApp o completa el formulario de contacto.