REX-69018
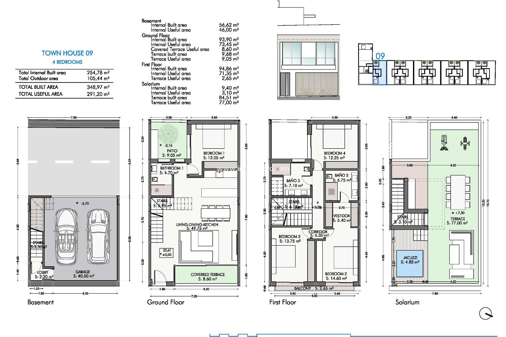
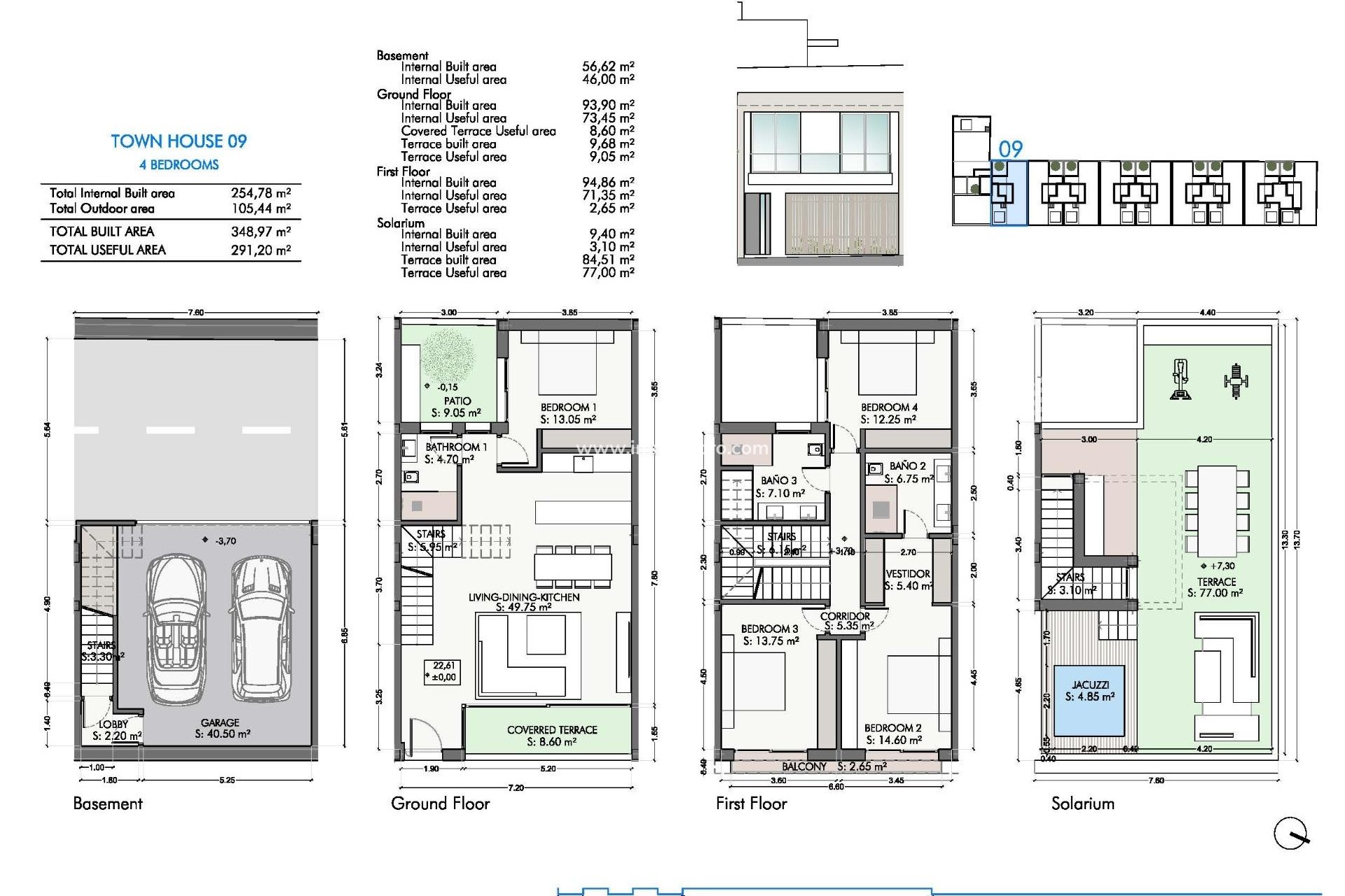
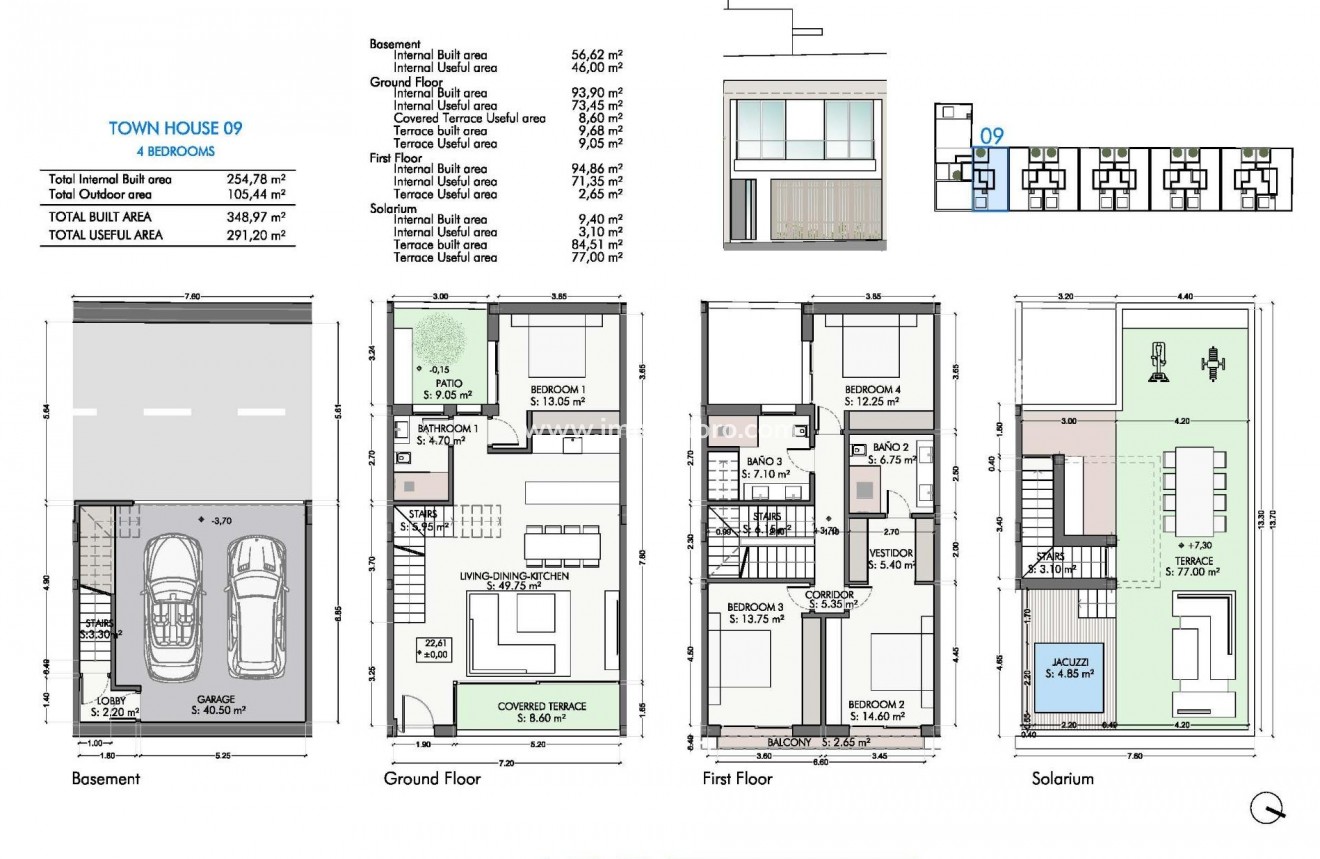
Villas, apartamentos y adosados de lujo de nueva construcción en San Pedro de Alcántara, Marbella Complejo residencial exclusivo cerca de la playa Descubra esta excepcional promoción inmobiliaria que ofrece una colección única de villas, adosados y apartamentos en San Pedro de Alcántara, una de las zonas más codiciadas de la Costa del Sol. Con una ubicación ideal a solo 800 metros del mar Mediterráneo y junto al animado paseo marítimo, este proyecto combina la vida moderna con una ubicación inmejorable. Rodeados de zonas verdes y a poca distancia del centro de la ciudad, los residentes disfrutan de un fácil acceso a restaurantes, tiendas, cafeterías y todos los servicios esenciales. San Pedro de Alcántara es conocido por su ambiente relajado, su hermoso paseo marítimo y su proximidad a Marbella, lo que lo convierte en un destino privilegiado tanto para residencias permanentes como para viviendas vacacionales. Amplia selección de viviendas contemporáneas Esta promoción boutique incluye 38 residencias exclusivas y un número limitado de locales comerciales. Los compradores pueden elegir entre 11 villas de lujo, 10 adosados modernos y 17 apartamentos con estilo, todos ellos diseñados con una arquitectura elegante y acabados de alta calidad. Los apartamentos están disponibles con uno, dos o tres dormitorios, y ofrecen opciones como plantas bajas con jardines privados o unidades en la última planta con terrazas y soláriums. Cada apartamento incluye aparcamiento subterráneo y un trastero con acceso mediante ascensor. Amplias casas adosadas con solárium privado Las casas adosadas ofrecen tres o cuatro dormitorios y tres baños, con distribuciones espaciosas repartidas en varios niveles. La mayoría de las unidades incluyen un ascensor privado que conecta todas las plantas, aparcamiento subterráneo para dos coches y un espacio adicional versátil que puede utilizarse como gimnasio, sala de juegos u oficina. La planta baja cuenta con una zona de estar diáfana con acceso directo a terrazas y patios, mientras que la planta superior incluye dormitorios con baños en suite. Un solárium privado en la azotea completa la propiedad, ideal para disfrutar del clima mediterráneo. Villas de lujo con piscina privada y sótano Las villas se encuentran en parcelas de más de 300 m² y ofrecen cinco o seis dormitorios distribuidos entre sótano, dos plantas principales y un solárium en la azotea conectado mediante un ascensor privado. Cada villa incluye piscina privada, jardín e interiores espaciosos diseñados para una vida de lujo. El sótano ofrece aparcamiento, dormitorios adicionales y un espacio flexible para el ocio o el trabajo. La planta baja conecta a la perfección con las terrazas exteriores y la piscina privada, mientras que la planta superior ofrece dormitorios con baño en suite y vistas despejadas. Acabados de alta calidad y confort moderno Todas las propiedades están construidas con los más altos estándares, y cuentan con aire acondicionado totalmente instalado, calefacción por suelo radiante, cocinas de diseño con electrodomésticos Siemens y puertas de seguridad reforzadas con sistemas de alarma. Ubicación privilegiada cerca del campo de golf y de los principales destinos Esta promoción goza de una ubicación perfecta, con el Club de Golf Guadalmina a solo 1,2 km, la playa a 0,8 km y el bulevar de San Pedro a 0,6 km. Marbella está a 10 km y el aeropuerto de Málaga a unos 65 km, lo que garantiza una excelente conectividad. Inversión ideal en la Costa del Sol Esta exclusiva promoción ofrece una oportunidad única de adquirir una propiedad de lujo en una de las zonas más cotizadas de Marbella. Póngase en contacto con nosotros hoy mismo para obtener más información o concertar una visita y asegurarse su nuevo hogar en San Pedro de Alcántara. 289
Contacta con Chantal a través de WhatsApp o completa el formulario de contacto.