IA-79182
Au cœur de Moraira se trouve ce projet exceptionnel de villa moderne, un exemple de luxe contemporain qui s'intègre parfaitement dans le paysage méditerranéen. Le projet présente des lignes architecturales épurées et est construit en béton armé avec des accents en bois, répartis sur plusieurs terrasses qui suivent la pente naturelle du terrain. De grands panneaux de verre laissent entrer une abondance de lumière naturelle et offrent des vues sur la végétation environnante.
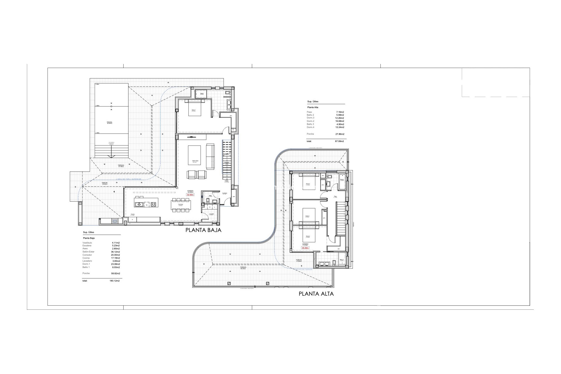
Au rez-de-chaussée se trouve un vaste espace de vie ouvert (36,12 m²) relié à une grande terrasse extérieure (81,46 m²), conçu dans un souci de confort et d'élégance avec des matériaux de grande qualité. La salle à manger et la cuisine (20 m²) sont équipées d'appareils électroménagers dernier cri. L'étage supérieur comprend une suite parentale avec dressing, salle de bains privative et accès à une terrasse privée, ainsi que trois chambres supplémentaires, chacune avec salle de bains privative et terrasse privée.
Les espaces extérieurs disposent d'une grande terrasse idéale pour les repas et la détente, menant à une piscine à débordement magnifiquement conçue. La propriété est entourée d'un jardin paysager avec des plantes indigènes, ce qui renforce la connexion naturelle. En outre, la maison est équipée de caractéristiques de conception durable, telles qu'un système de pompe à chaleur air-eau, un chauffage par le sol et une isolation de haute qualité, garantissant l'efficacité énergétique et le confort.
N'hésitez pas à nous contacter en
Contactez Chantal via Whatsapp ou remplissez le formulaire de contact.