Fermer Close menu

Villa. Nouvelle construction Aspe · Poligono 19 · Costa Blanca · RS-92015

Villas neuves situées dans la commune d'Aspe.

RS-92015

Villa. Nouvelle construction Aspe · Poligono 19 · Costa Blanca · RS-92015

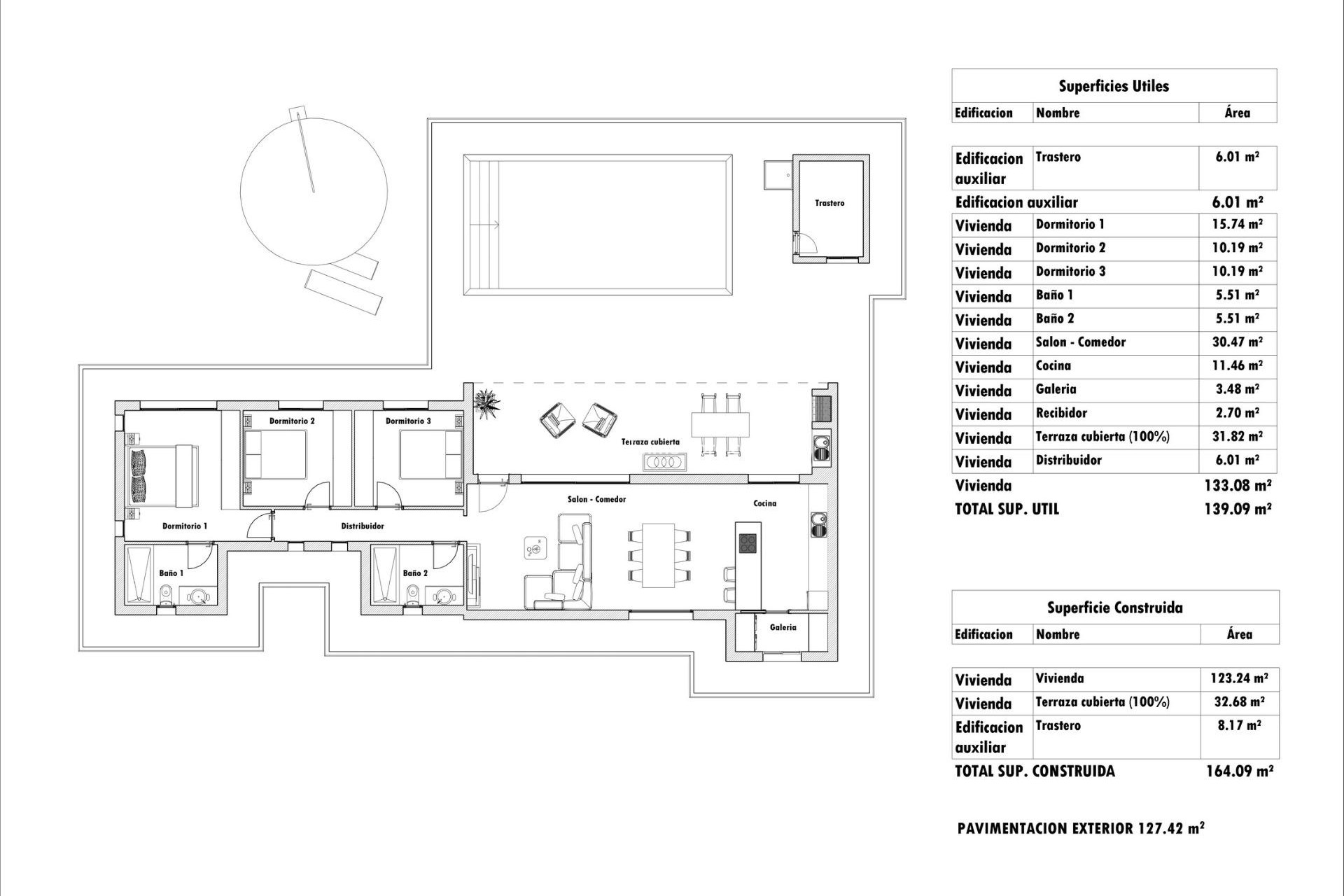
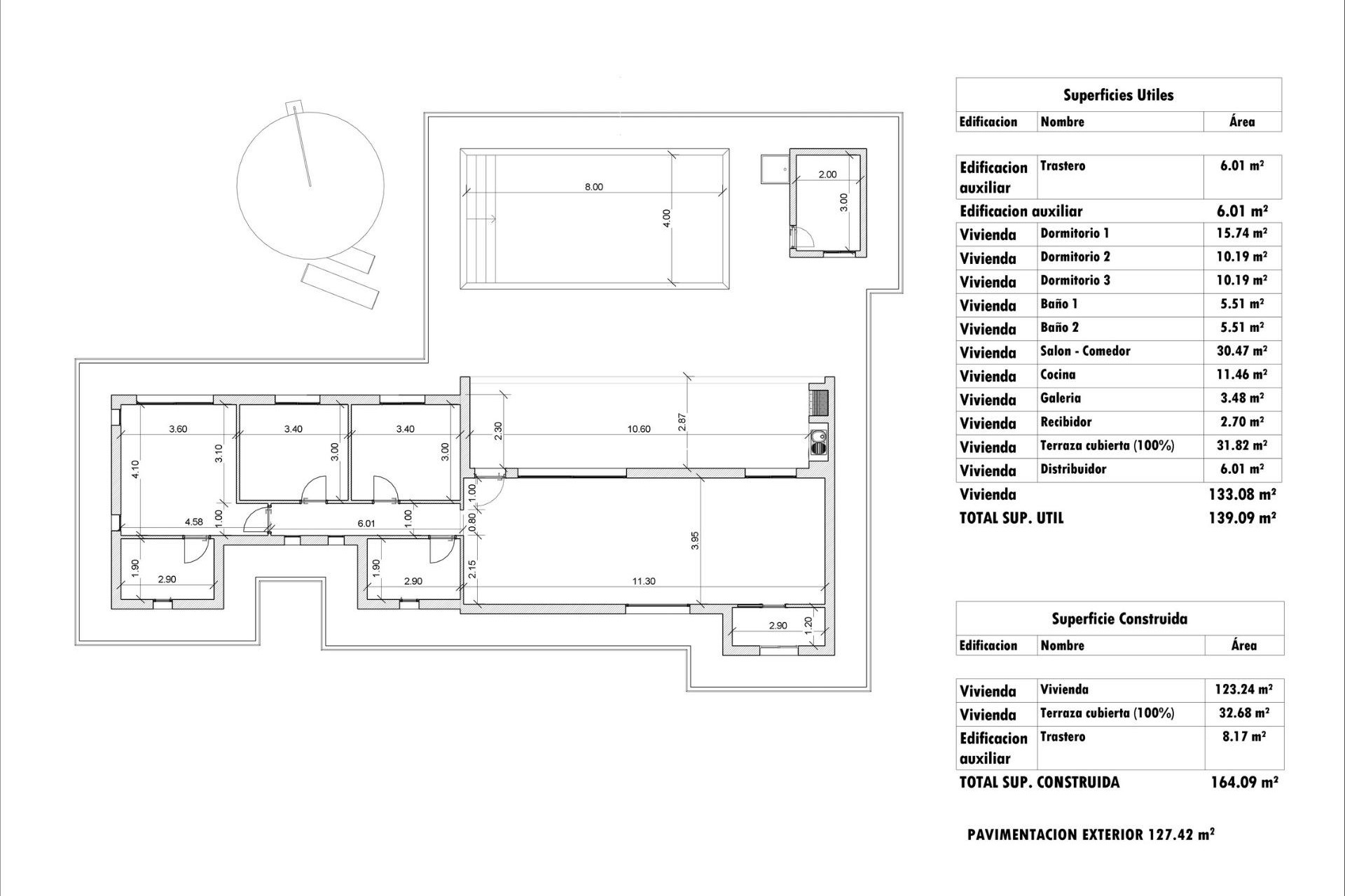
  • 164m2
  • 13.172m2
  • 3
  • 2
  • Oui

Fonctionnalités

Check Chambres: 3
Check Salles de bain: 2
Check Construit: 164m2
Check Intrigue: 13.172m2
Check Piscine: Oui
Check Number of Parking Spaces: 1
Check Near Schools
Check Air Conditioning: Pre-Installed
Check Double Bedrooms: 3
Check Useable Build Space: 139 Msq.
Check Terrace: 32 Msq.
Check Location: Rural, Mountain
Check Parking - Space
Check Beach: 25000 Meters
Check Storage / Trastero
Check Piscine privée
Check Jardin
Check Gated

La description

Fonctionnalités



Emplacement

Demande d'informations

Contactez Chantal via Whatsapp ou remplissez le formulaire de contact.

WhatsappContacter par Whatsapp

Formulaire de contact

Responsable del tratamiento: El Toro Urbanismo Costa Blanca, SL, Finalidad del tratamiento: Gestión y control de los servicios ofrecidos a través de la página Web de Servicios inmobiliarios, Envío de información a traves de newsletter y otros, Legitimación: Por consentimiento, Destinatarios: No se cederan los datos, salvo para elaborar contabilidad, Derechos de las personas interesadas: Acceder, rectificar y suprimir los datos, solicitar la portabilidad de los mismos, oponerse altratamiento y solicitar la limitación de éste, Procedencia de los datos: El Propio interesado, Información Adicional: Puede consultarse la información adicional y detallada sobre protección de datos Aquí.

Propriétés similaires

WhatsApp
Demander un rendez-vous