REX-20709
VILLA DE LUXE NOUVELLEMENT CONSTRUITE À MORAIRA
Nouvelle construction Villa de luxe avec les meilleures qualités, et à distance de marche des belles plages et le centre de Moraira.
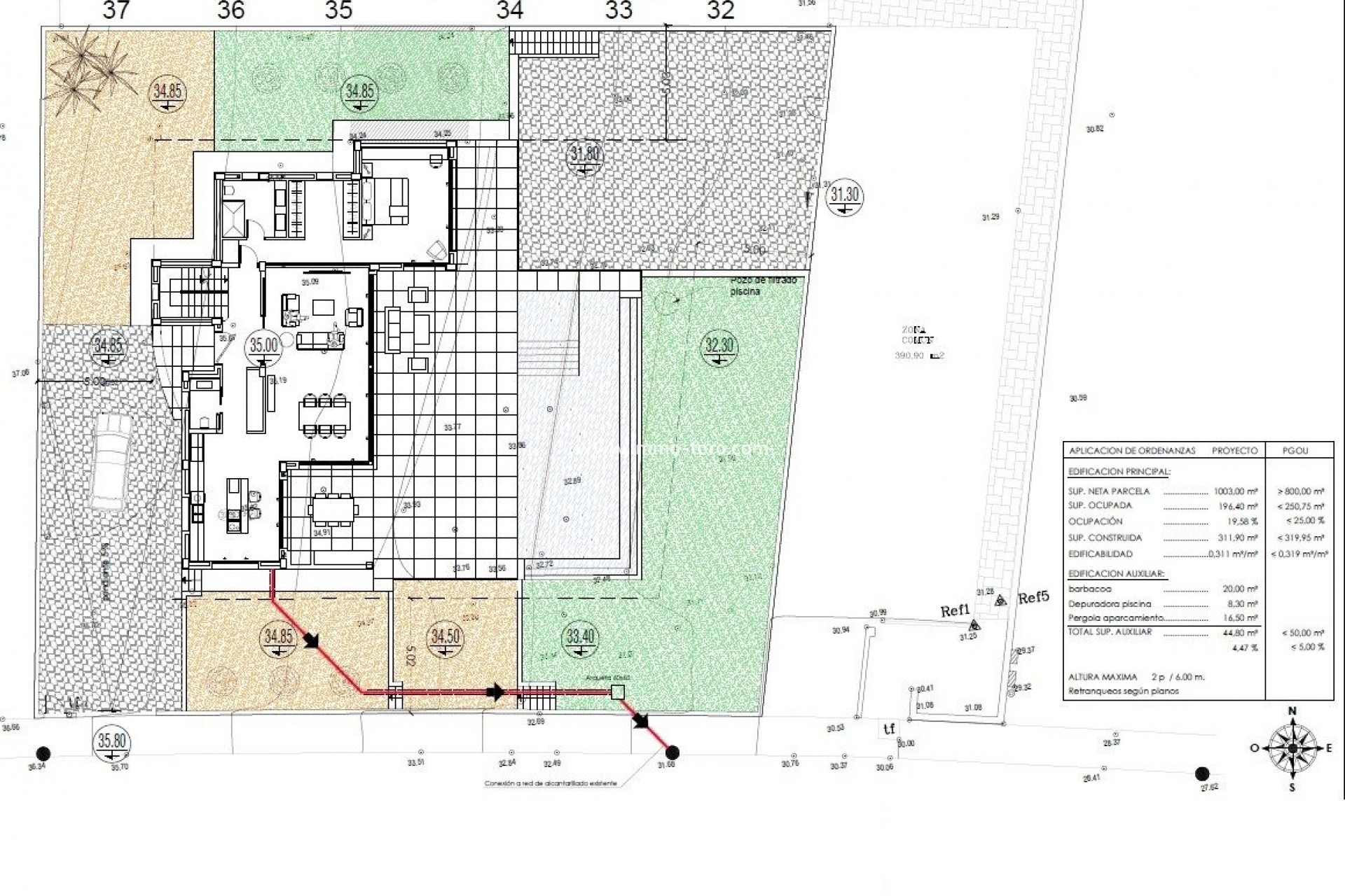
Cette villa de luxe est répartie sur 3 étages : au rez-de-chaussée (147,30m2) il y a un grand salon lumineux à côté de la cuisine ouverte avec un îlot de cuisson, une toilette d'invités et une chambre avec une salle de bain en-suite. A l'extérieur de cet étage, nous trouvons la piscine et le coin barbecue.
Puis nous montons à l'étage supérieur (133,65m2) où nous trouvons 3 chambres spacieuses avec leur salle de bain en suite.
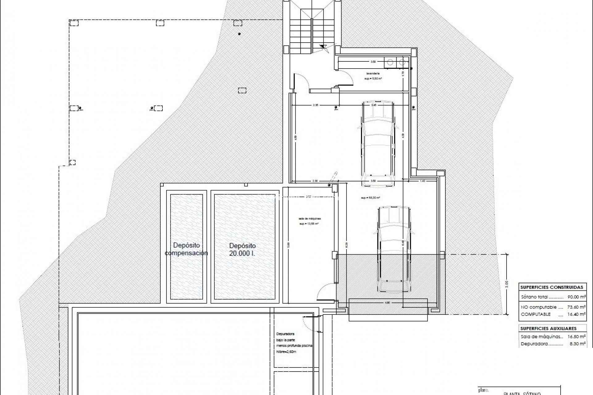
Enfin, l'étage du sous-sol, où il mène à un double garage et une buanderie.
EXTRAS : Menuiserie technique avec verre de sécurité, cuisine complète avec appareils Siemens, salles de bains et robinetterie complètes de la marque Roca, éclairage LED, système aérothermique pour l'eau chaude et le chauffage au sol, climatisation canalisée (chaud et froid) dans toute la maison, panneaux solaires, armoires encastrées, volets électriques, alarme intérieure, pré-installation d'une alarme extérieure et de caméras de sécurité. Piscine rectangulaire avec système de débordement de 12x4,5 mètres, espace barbecue de 22m2, buanderie, jardin fini.
Portes d'accès automatiques.
Classification énergétique A.
Orientation sud.
Moraira est une petite ville avec de bons restaurants, des bars et de nombreux supermarchés autour.
Il y a une plage très agréable juste à côté de la ville qui est idéale pour les familles.
Le front de mer offre une vue imprenable sur Penon Ifach, de l'autre côté de la baie de Calpe. La route côtière qui y mène vaut la peine d'être parcourue et offre des vues spectaculaires.
Moraira est située à environ 1 heure 15 minutes au nord de l'autoroute A7 depuis l'aéroport d'Alicante et est assez facile d'accès. C'est à peu près la même distance ou un peu moins au sud de l'aéroport de Valence.
Contactez Chantal via Whatsapp ou remplissez le formulaire de contact.