IA-44050
Située dans la charmante ville de Benissa sur la Costa Blanca, cette perle architecturale combine design moderne et éléments traditionnels méditerranéens. Cette résidence exceptionnelle se trouve sur un terrain de 770 m², offrant un espace de vie élégant et confortable.
Avec une surface construite de 831,15 m² et un jardin de 356,92 m², la maison est conçue pour maximiser le confort et la fonctionnalité. En entrant, vous êtes accueilli par un vaste salon-salle à manger avec une cuisine intégrée, créant une atmosphère ouverte et lumineuse qui se connecte directement à la terrasse et à la zone de la piscine, idéale pour profiter du climat méditerranéen.
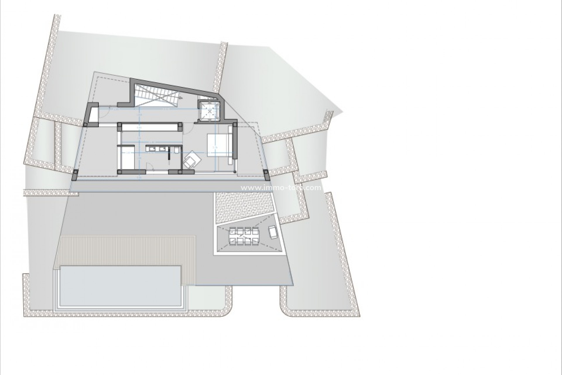
Le premier étage dispose de quatre chambres conçues avec soin et confort, ainsi que de trois salles de bains complètes et d'un hall fonctionnel. Le deuxième étage, qui sert également de zone d'entrée principale, comprend un hall et un garage pouvant accueillir plusieurs véhicules.
Le sous-sol multifonctionnel abrite une cave à vin et offre un accès supplémentaire au garage, ajoutant commodité et utilité à la résidence.
L'extérieur comprend plusieurs terrasses avec vue panoramique et divers environnements pour se détendre ou recevoir des invités. La piscine de 30,72 m², accompagnée d'une pergola barbecue, crée le cadre parfait pour les nuits d'été. Le jardin ajoute une touche de nature et de tranquillité, faisant de cette propriété un véritable oasis.
Cette résidence n'est pas seulement une maison ; c'est un mode de vie. Conçue pour offrir un maximum de luxe et de confort, elle est parfaite pour ceux qui recherchent une résidence exclusive dans un emplacement de choix. Ne manquez pas l'occasion de vivre dans l'un des plus beaux endroits de la Costa Blanca. Pour plus d'informations ou pour planifier une visite, veuillez nous contacter. Nous sommes là pour vous aider à trouver la maison de vos rêves.
Contactez Chantal via Whatsapp ou remplissez le formulaire de contact.