REX-40567
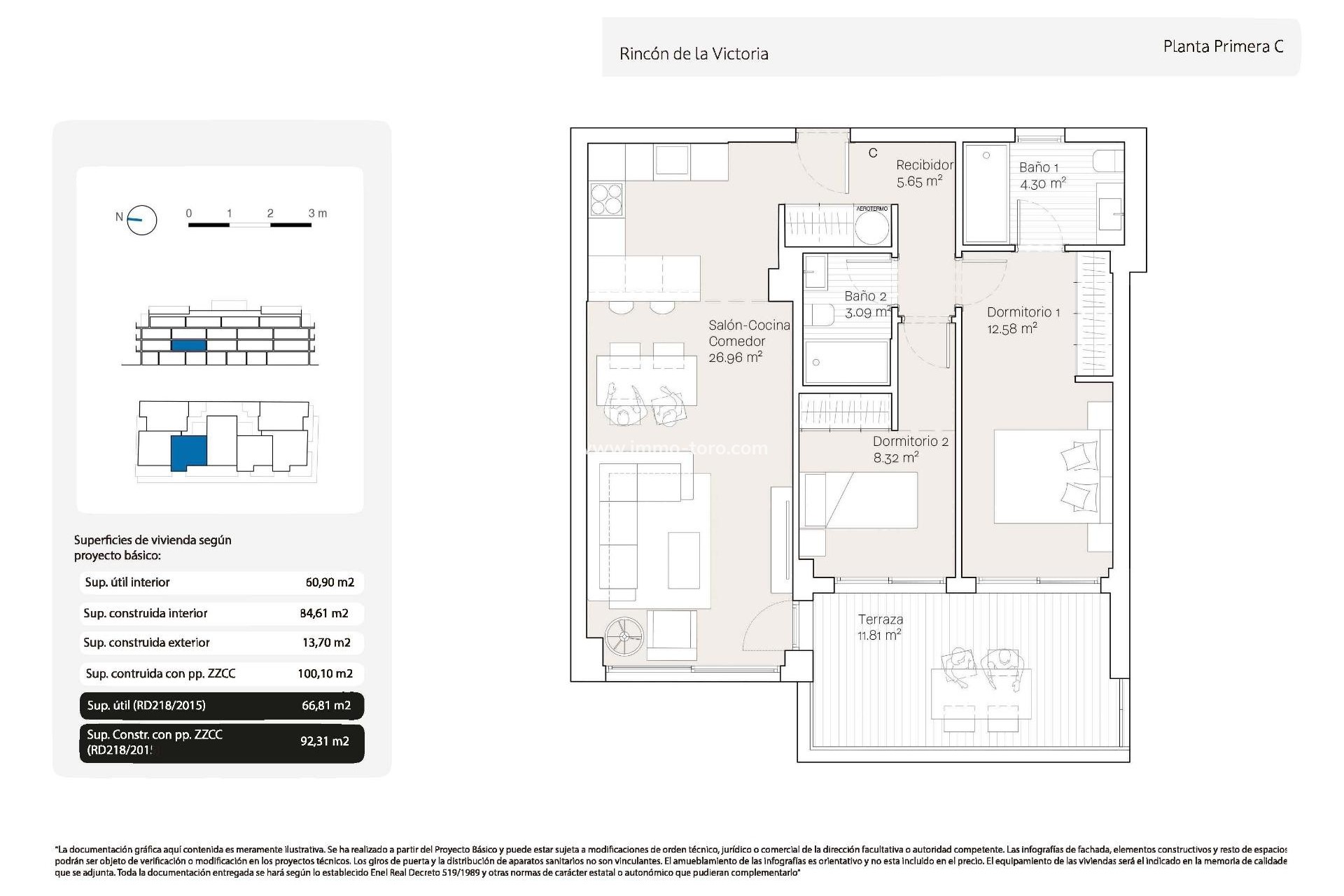
Nieuwbouwappartementen op 100 m van de zee in Rincon de la Victoria, Torre de Benagalbon Modern wooncomplex aan de Costa del Sol Ontdek dit exclusieve nieuwbouwresidentieel complex in Torre de Benagalbon, een kustgebied in Rincon de la Victoria. Het complex ligt op slechts 100 meter van de zee en biedt 28 moderne appartementen en penthouses met 1, 2 en 3 slaapkamers, ontworpen om te genieten van het mediterrane leven in een bevoorrechte omgeving. Rincon de la Victoria is een traditionele badplaats aan de oostelijke Costa del Sol, bekend om zijn ontspannen sfeer, lange stranden, boulevard en uitstekende lokale gastronomie. Met alle dagelijkse voorzieningen, scholen, sportfaciliteiten en winkelgebieden in de buurt is het een ideale plek voor zowel permanente bewoning als vakantiehuizen. De stad Malaga ligt op slechts 20 minuten afstand en biedt culturele bezienswaardigheden, winkelgebieden en een levendige jachthaven. Lichte appartementen met ruime terrassen Het architectonische ontwerp volgt een strakke en moderne esthetiek die het natuurlijke licht en de open leefruimtes benadrukt. De meeste woningen hebben royale buitenterrassen, waardoor een naadloze verbinding tussen binnen- en buitenruimtes ontstaat. De indeling van het interieur is zorgvuldig ontworpen om comfortabele en functionele ruimtes te creëren. De penthouses hebben een eigen solarium, perfect om te zonnebaden of in alle privacy van het uitzicht op zee te genieten. Elke woning beschikt over een eigen parkeerplaats en berging, wat extra gemak en waarde toevoegt. Kwaliteitskenmerken en energiezuinige systemen Het project is uitgerust met moderne installaties die comfort en efficiëntie garanderen, waaronder elektrische rolluiken, een video-intercomsysteem en aerothermische technologie voor warm water en klimaatbeheersing. De keukens worden ongemeubileerd opgeleverd, met de mogelijkheid om tegen meerprijs verschillende afwerkingen te kiezen, zodat kopers hun woning kunnen personaliseren. Bewoners kunnen genieten van een gemeenschappelijk zwembad op het dak met solarium en prachtig uitzicht op zee, een ideale plek om te ontspannen onder de zon van de Costa del Sol. Uitstekende locatie en afstanden Strand 0,1 km Haven van Malaga 20 km Centrum van Malaga 20 km Luchthaven van Malaga 30 km Anoreta Golf 5 km Verzeker uzelf van een woning aan zee Dit nieuwbouwproject in Rincon de la Victoria biedt een modern ontwerp, de nabijheid van de zee en uitstekende verbindingen met Malaga en de rest van de Costa del Sol. Neem vandaag nog contact met ons op voor meer informatie of om een bezichtiging te regelen van deze exclusieve appartementen op slechts een steenworp afstand van het strand. 289
Neem contact op met Chantal via Whatsapp of vul het contactformulier in.