REX-31702
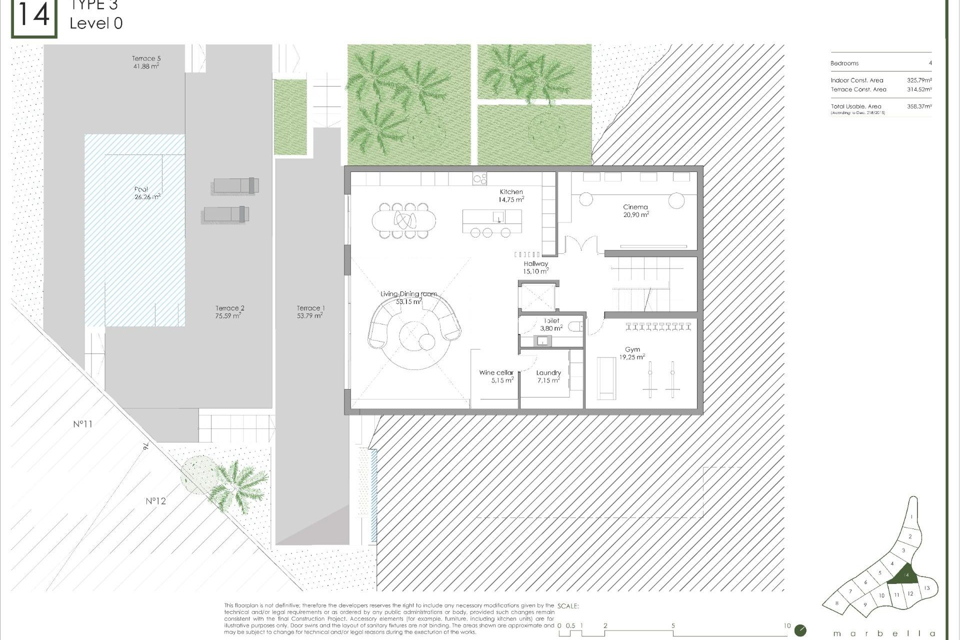
Luxe nieuwbouwwoningen te koop in Elviria-Marbella Oost, vlakbij het strand Exclusieve villa's in een van de meest prestigieuze wijken van Marbella Ontdek een exclusieve collectie van 14 luxe nieuwbouwwoningen in Elviria, een van de meest gewilde woonwijken van Marbella aan de Costa del Sol. Deze elegante woningen, omgeven door glooiende heuvels met pijnbomen en natuurlijke landschappen, combineren tijdloze Andalusische architectuur met modern mediterraan wonen. Elviria staat bekend om zijn rustige omgeving, prachtige stranden en uitstekende voorzieningen. De wijk biedt een ruime keuze aan internationale scholen, golfbanen, strandclubs, restaurants en winkels. Tegelijkertijd biedt het snelle toegang tot het centrum van Marbella en andere belangrijke bestemmingen langs de Costa del Sol, waardoor het een zeer gewilde locatie is voor zowel permanente woningen als luxe vakantiehuizen. Elegante architectuur en ruimtelijk, eigentijds ontwerp Elke villa is zorgvuldig ontworpen om een lichte en verfijnde woonomgeving te creëren. De architectuur combineert elegante witte gevels met details in natuursteen en grote ramen die het hele dag door natuurlijk licht binnenlaten. De villa's hebben royale percelen van meer dan 1100 m2 en een ruim interieur verdeeld over twee verdiepingen. Elke woning heeft vier slaapkamers, vier badkamers en een gastentoilet, wat zowel bewoners als gasten comfort en privacy biedt. De open woon- en eetruimtes lopen naadloos over in grote terrassen, aangelegde tuinen en privé-infinitypools. Dit ontwerp creëert een perfecte indoor-outdoor levensstijl, ideaal om te ontspannen, gasten te ontvangen en het hele jaar door te genieten van het mediterrane klimaat. Luxe voorzieningen en hoogwaardige afwerking Deze villa's zijn uitgerust met hoogwaardige voorzieningen die zijn ontworpen om het comfort, het gemak en de duurzaamheid te vergroten. Privézwembad en aangelegde tuin Ruime terrassen met vrij uitzicht Privéfitnessruimte in geselecteerde villa's Privébioscoop in geselecteerde woningen Lift voor gemakkelijke toegang tussen verdiepingen in sommige units Dubbele privé parkeerplaatsen Energiezuinig ontwerp met zonnepanelen Oplaadpunt voor elektrische voertuigen De master suites zijn ontworpen als elegante toevluchtsoorden met ruime kleedruimtes en spa-geïnspireerde badkamers die een gevoel van luxe toevoegen aan het dagelijks leven. Toplocatie nabij stranden, golfbanen en het leven in Marbella Nikki Beach Marbella 2,5 km Playa de Elviria 2,3 km Santa Maria Golf Club 3 km Centrum van Marbella 10 km Luchthaven Malaga Costa del Sol 40 km De omgeving biedt ook snelle toegang tot gerenommeerde strandclubs, uitstekende restaurants en luxe jachthavens zoals Puerto Banús. Ontdek luxe wonen in Elviria Marbella Deze uitzonderlijke villa's bieden privacy, elegantie en een bevoorrechte locatie in Marbella Oost. Neem vandaag nog contact met ons op voor meer informatie of om een privébezichtiging te regelen en uw luxe villa in Elviria te reserveren. 289
Neem contact op met Chantal via Whatsapp of vul het contactformulier in.