REX-69018
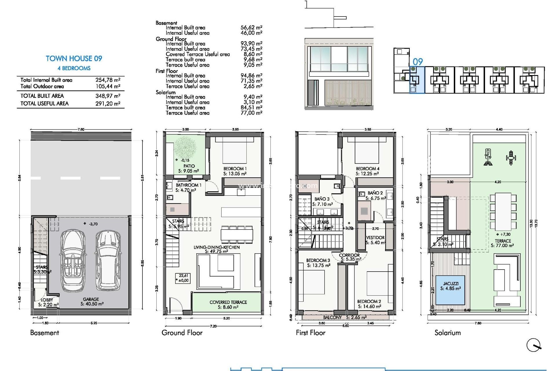
Luxe nieuwbouwwilla’s, appartementen en herenhuizen in San Pedro de Alcántara, Marbella Exclusief woonproject vlak bij het strand Ontdek dit uitzonderlijke nieuwbouwproject met een unieke collectie villa’s, herenhuizen en appartementen in San Pedro de Alcántara, een van de meest gewilde wijken aan de Costa del Sol. Ideaal gelegen op slechts 800 meter van de Middellandse Zee en naast de levendige boulevard, combineert dit project modern wonen met een ongeëvenaarde locatie. Omgeven door groene zones en op loopafstand van het stadscentrum, genieten bewoners van gemakkelijke toegang tot restaurants, winkels, cafés en alle essentiële voorzieningen. San Pedro de Alcantara staat bekend om zijn ontspannen sfeer, prachtige boulevard en de nabijheid van Marbella, waardoor het een uitstekende bestemming is voor zowel permanente bewoning als vakantiehuizen. Ruime keuze aan eigentijdse woningen Dit kleinschalige project omvat 38 exclusieve woningen en een beperkt aantal commerciële units. Kopers kunnen kiezen uit 11 luxe villa's, 10 moderne herenhuizen en 17 stijlvolle appartementen, allemaal ontworpen met elegante architectuur en hoogwaardige afwerking. Er zijn appartementen beschikbaar met één, twee of drie slaapkamers, met opties zoals begane grondappartementen met privétuinen of units op de bovenste verdieping met terrassen en solariums. Elk appartement beschikt over een ondergrondse parkeerplaats en een berging met toegang via de lift. Ruime herenhuizen met eigen solarium De herenhuizen bieden drie of vier slaapkamers en drie badkamers, met ruime indelingen verdeeld over meerdere verdiepingen. De meeste woningen beschikken over een eigen lift die alle verdiepingen met elkaar verbindt, een ondergrondse parkeerplaats voor twee auto's en extra veelzijdige ruimte die kan worden gebruikt als fitnessruimte, speelkamer of kantoor. De begane grond beschikt over een open woonruimte met directe toegang tot terrassen en patio's, terwijl de bovenverdieping slaapkamers met en-suite badkamers omvat. Een eigen solarium op het dak maakt de woning compleet, ideaal om te genieten van het mediterrane klimaat. Premium villa's met privézwembad en kelder De villa's staan op percelen van meer dan 300 m² en bieden vijf of zes slaapkamers, verdeeld over een kelder, twee hoofdverdiepingen en een dakterras dat met een privélift verbonden is. Elke villa beschikt over een privézwembad, een tuin en ruime interieurs die zijn ontworpen voor een luxe levensstijl. Het kelderniveau biedt parkeergelegenheid, extra slaapkamers en flexibele ruimte voor ontspanning of werk. De begane grond sluit naadloos aan op de buitenterrassen en het privézwembad, terwijl de bovenverdieping slaapkamers met eigen badkamer en een vrij uitzicht biedt. Hoogwaardige afwerking en modern comfort Alle woningen zijn gebouwd volgens de hoogste normen en voorzien van volledig geïnstalleerde airconditioning, vloerverwarming, designkeukens met Siemens-apparatuur en versterkte veiligheidsdeuren met alarmsystemen. Toplocatie dicht bij golfbanen en belangrijke bestemmingen Dit project is perfect gelegen met de Guadalmina Golf Club op slechts 1,2 km afstand, het strand op 0,8 km en de boulevard van San Pedro op 0,6 km. Marbella ligt op 10 km afstand en de luchthaven van Málaga op ongeveer 65 km, wat zorgt voor uitstekende verbindingen. Ideale investering aan de Costa del Sol Dit exclusieve project biedt een zeldzame kans om een luxe woning te bezitten in een van de meest gewilde wijken van Marbella. Neem vandaag nog contact met ons op voor meer informatie of om een bezichtiging te regelen en uw nieuwe woning in San Pedro de Alcántara veilig te stellen. 289
Neem contact op met Chantal via Whatsapp of vul het contactformulier in.