REX-62743
Modern Mediterranean Apartments in Ciudad Quesada, Costa Blanca
Exclusive Residential Living
Discover an exclusive private residential complex designed to offer maximum comfort, quality, and lifestyle in one of the most sought-after locations on the Costa Blanca. Situated in Ciudad Quesada, just minutes from the Alicante International Airport, this modern development combines the timeless charm of Mediterranean architecture with a fresh, functional design ideal for contemporary living.
Elegant Apartments with Private Outdoor Spaces
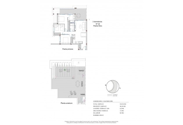
The complex features two types of homes to suit different lifestyles. Choose between ground-floor apartments with a spacious private garden, perfect for outdoor relaxation, or first-floor apartments with a large private solarium, ideal for enjoying the year-round sunshine and tranquil views.
Each apartment includes 2 or 3 bedrooms and 2 bathrooms, offering bright and comfortable interiors. Additionally, every home comes with private parking within the complex and a storage room for added convenience.
Community Spaces for Relaxation and Well-Being
Designed for enjoyment and relaxation, the residential complex offers beautifully landscaped communal gardens and a large swimming pool that creates a serene and exclusive atmosphere. Whether you are looking to unwind under the sun, take a refreshing swim, or simply enjoy the natural surroundings, this development provides everything you need to live comfortably on the Costa Blanca.
Prime Location Near Beaches and Golf
Ciudad Quesada is a well-established and vibrant community, known for its excellent services, restaurants, and leisure options. The La Marquesa Golf Course, located just a few minutes away, is one of the most historic golf courses on the Costa Blanca, featuring 18 holes and the famous hole 17 inspired by Sawgrass, offering a unique experience for golf enthusiasts.
The beautiful blue-flag beaches of Guardamar del Segura, La Mata, and Torrevieja are only 15 km from the development, perfect for sunbathing or enjoying water sports. Alicante International Airport is conveniently located 40 km away, making travel easy and accessible.
Mediterranean Lifestyle at Its Best
Surrounded by nature, golf courses, and the sea, this residential project offers the perfect setting for both permanent living and holiday enjoyment. It’s a place where modern comfort meets the charm of the Mediterranean way of life.
Schedule Your Visit Today
Don’t miss the opportunity to own your new home in Ciudad Quesada, Costa Blanca. Contact us today for more information or to arrange a private viewing of these exceptional new-build apartments.
Contact Chantal via Whatsapp or fill in the contact form.