IA-44050
Located in the charming town of Benissa on the Costa Blanca, this architectural gem combines modern design with traditional Mediterranean elements. This exceptional residence sits on a 770 m² plot, offering an elegant and cozy living space.
With a built area of 831.15 m² and a 356.92 m² garden, the house is designed to maximize comfort and functionality. Upon entering, you are welcomed by a spacious living-dining room with an integrated kitchen, creating an open and bright atmosphere that connects directly to the terrace and pool area, ideal for enjoying the Mediterranean climate.
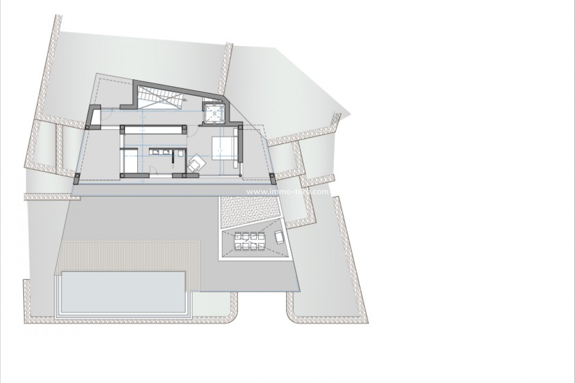
The first floor features four bedrooms designed with attention to detail and comfort, along with three full bathrooms and a functional hallway. The second floor, which also serves as the main entrance area, includes a hallway and a garage with capacity for several vehicles.
The multifunctional basement houses a wine cellar and offers additional access to the garage, adding convenience and utility to the residence.
The exterior includes multiple terraces with panoramic views and various environments for relaxation or entertaining guests. The 30.72 m² pool, accompanied by a barbecue pergola, creates the perfect setting for summer nights. The garden adds a touch of nature and tranquility, making this property a true oasis.
This residence is not just a home; it is a lifestyle. Designed to offer maximum luxury and comfort, it is perfect for those seeking an exclusive residence in a prime location. Don’t miss the opportunity to live in one of the most beautiful places on the Costa Blanca. For more information or to schedule a visit, please contact us. We are here to help you find your dream home.
Contact Chantal via Whatsapp or fill in the contact form.