REX-40412
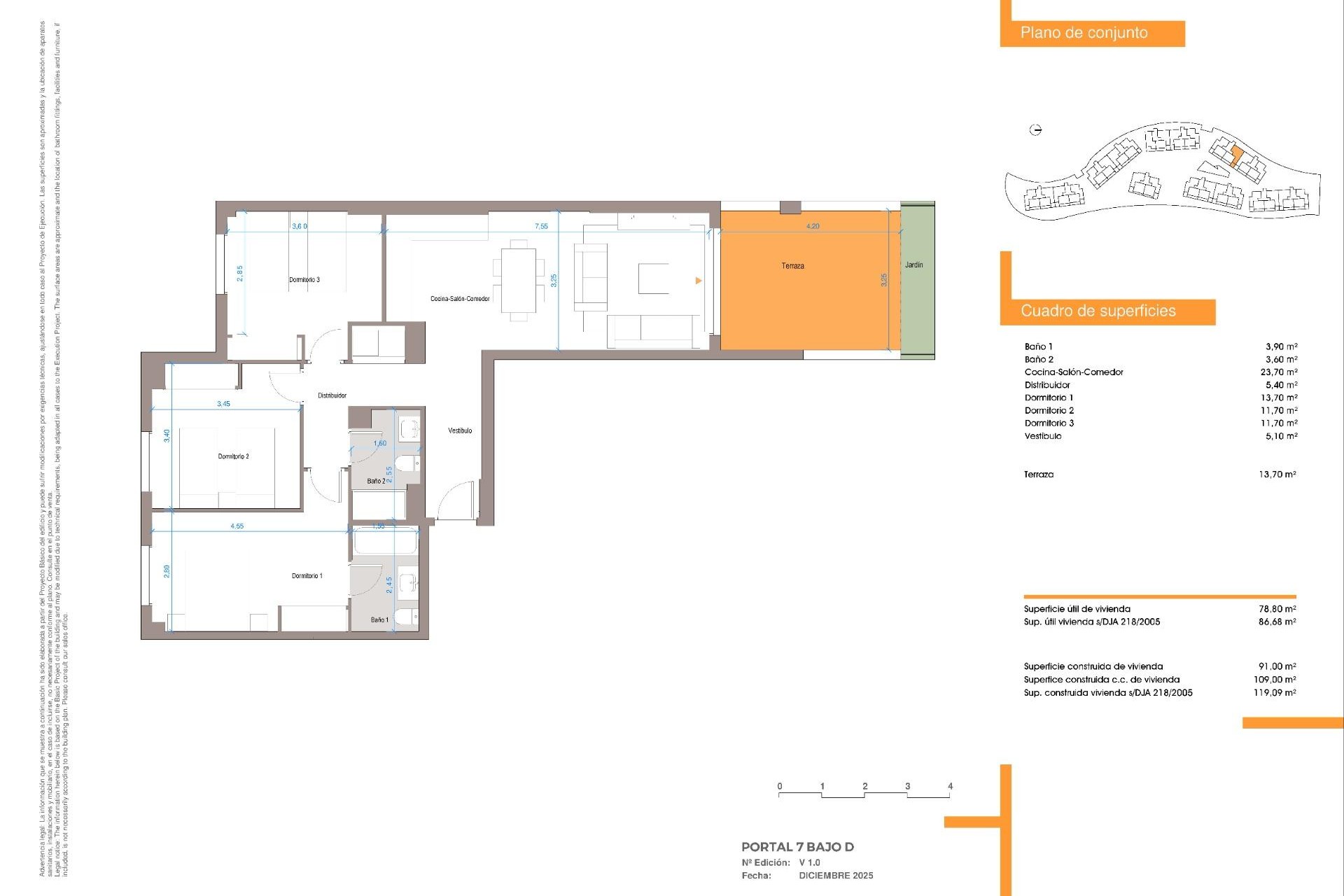
New Build Apartments at Baviera Golf in Vélez Málaga Just 1500 m from the Sea Exclusive Residential Complex on the Costa del Sol This gated and exclusive residential development is located within Baviera Golf in Vélez Málaga, only 1500 meters from the Mediterranean Sea. The complex consists of 115 modern apartments with 2 and 3 bedrooms, distributed across 7 blocks and 13 entrances, designed to offer comfort, privacy and a high quality lifestyle in a privileged golf front setting. All properties include a private parking space and storage room, making this development ideal for permanent living, holiday use or investment on the Costa del Sol. Bright Homes with Terraces, Gardens and Open Views Thanks to the natural slope of the plot and a detailed architectural study, the homes have been designed with balanced layouts, open plan living spaces and excellent orientations that provide abundant natural light and pleasant open views. Buyers can choose between ground floor apartments with private terrace and garden, mid floor apartments with spacious terraces or penthouses with large open terraces and panoramic views. High Quality Specifications and Personalization Options The apartments are delivered with top level construction standards and energy rating A, ensuring efficiency and sustainability. Features include reinforced security entrance doors, preinstallation for ducted air conditioning and lift access in all buildings. Kitchens are delivered unfurnished, allowing buyers to personalize finishes and appliances according to their preferences at an additional cost. A wide catalog of customization options is available to adapt each home to individual tastes and needs. Outstanding Communal Areas for Relaxation and Wellbeing Residents can enjoy landscaped gardens, a communal swimming pool, a fitness space and a social club room, creating a complete residential environment focused on comfort and community living. Prime Location Near La Caleta de Vélez and the Beach The development is just 500 meters from La Caleta de Vélez, where you will find schools, health centers, sports facilities, pharmacies, supermarkets and restaurants. The beach is less than 2 km away, and the marina at Caleta de Vélez Marina offers nautical activities and waterfront dining. Distances to Key Points of Interest Baviera Golf: front line La Caleta de Vélez 0.5 km Beach 1.5 km Torre del Mar 3 km Málaga city center 35 km Malaga Airport 40 km With direct access to the A7 motorway, this location ensures excellent connectivity across the Costa del Sol. Your New Home by the Golf and the Sea Enjoy tranquility, golf views and proximity to the beach in one of the most attractive areas of Vélez Málaga. Contact us today to receive more information or to arrange a private visit to this exceptional new build development. 289
Contact Chantal via Whatsapp or fill in the contact form.