Fermer Close menu

Villa. Nouvelle construction Aspe · Poligono 19 · Costa Blanca · RS-22516

Villas neuves situées en Aspe.

RS-22516

Villa. Nouvelle construction Aspe · Poligono 19 · Costa Blanca · RS-22516

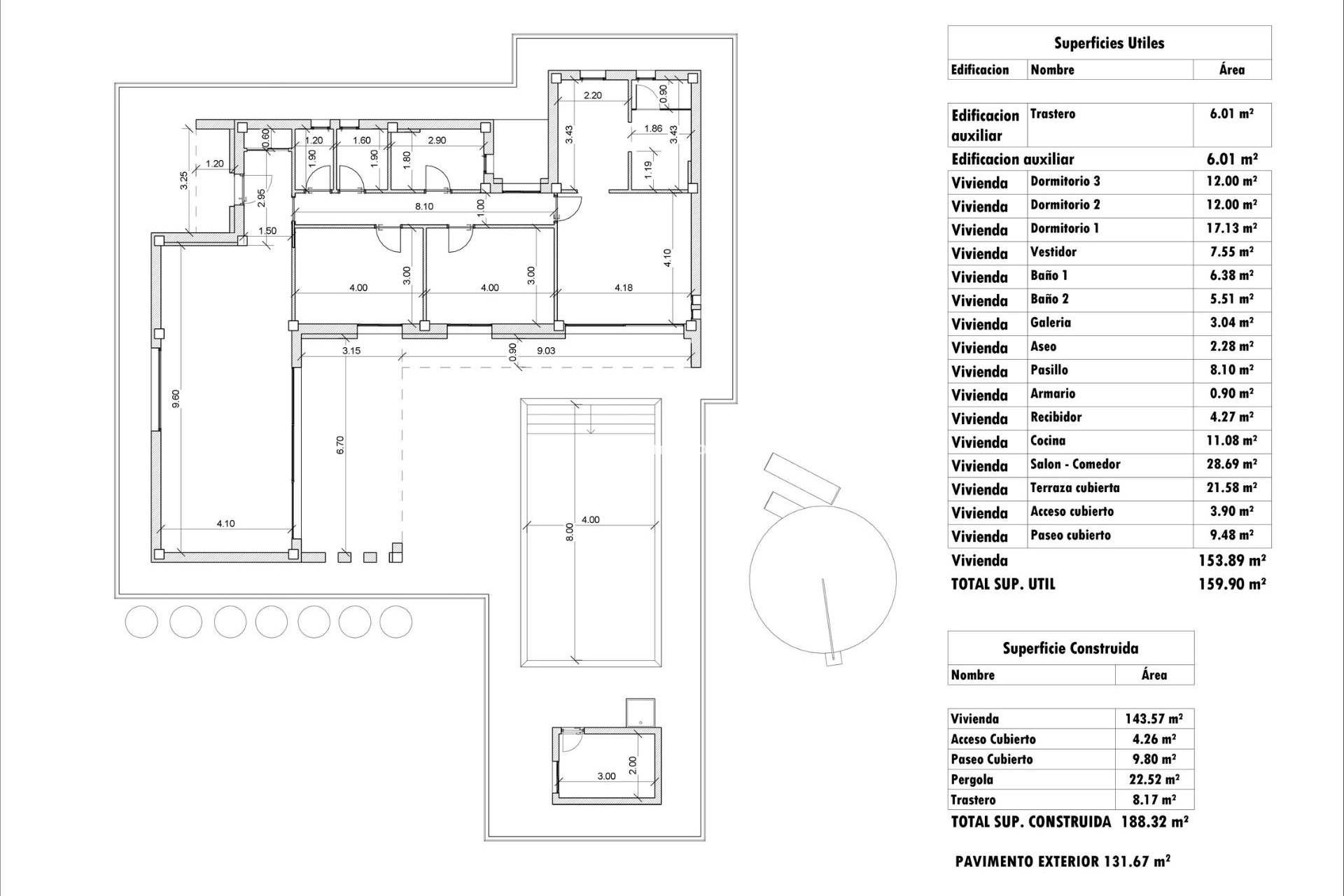
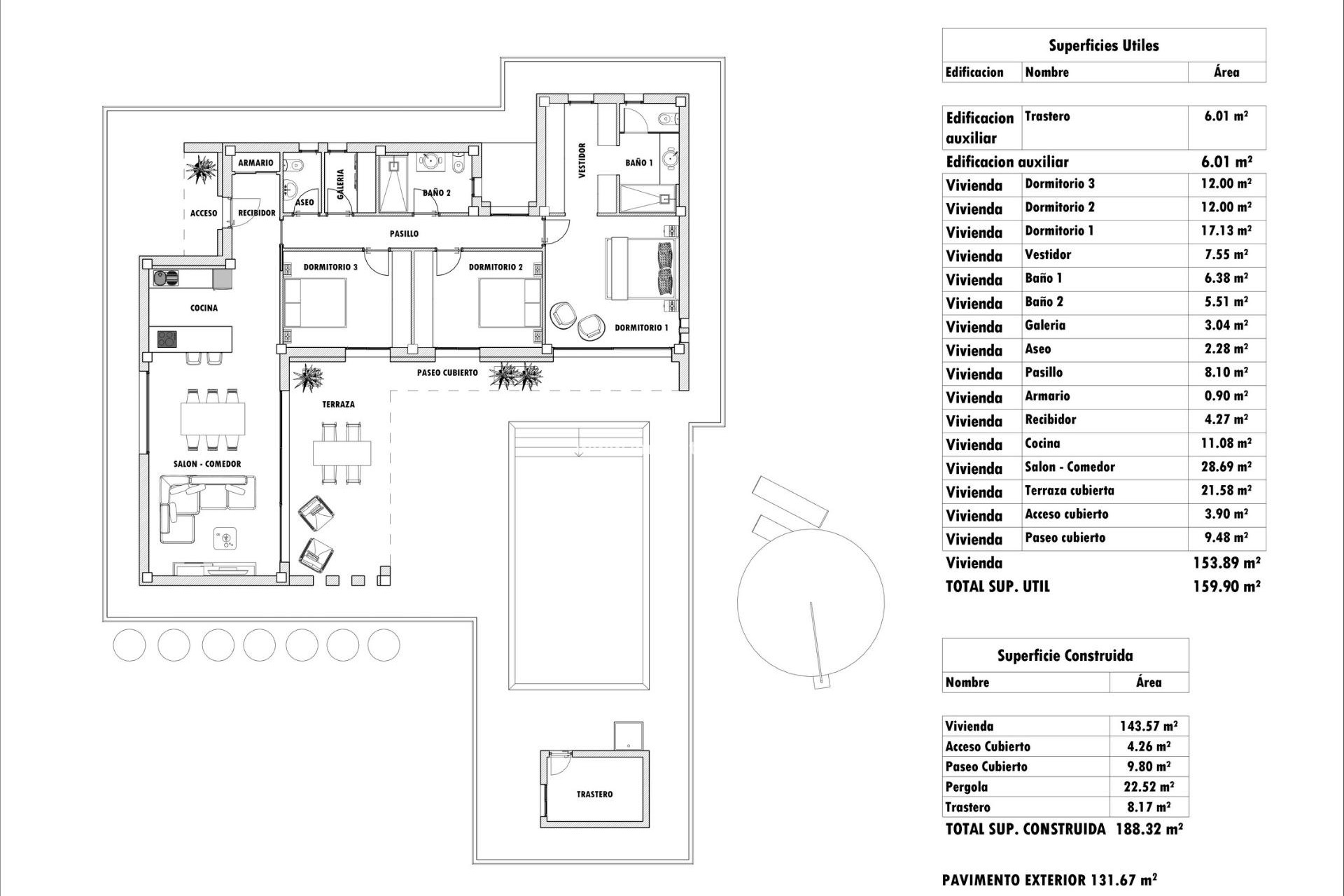
  • 188m2
  • 13.172m2
  • 3
  • 3
  • Oui

Fonctionnalités

Check Chambres: 3
Check Salles de bain: 3
Check Construit: 188m2
Check Intrigue: 13.172m2
Check Piscine: Oui
Check Piscine privée
Check Jardin
Check Gated
Check Number of Parking Spaces: 1
Check Near Schools
Check Air Conditioning: Pre-Installed
Check Double Bedrooms: 3
Check Location: Rural, Mountain
Check Terrace: 36 Msq.
Check Parking - Space
Check Useable Build Space: 159 Msq.
Check Beach: 25000 Meters
Check Storage / Trastero

La description

Fonctionnalités



Emplacement

Demande d'informations

Contactez Chantal via Whatsapp ou remplissez le formulaire de contact.

WhatsappContacter par Whatsapp

Formulaire de contact

Responsable del tratamiento: El Toro Urbanismo Costa Blanca, SL, Finalidad del tratamiento: Gestión y control de los servicios ofrecidos a través de la página Web de Servicios inmobiliarios, Envío de información a traves de newsletter y otros, Legitimación: Por consentimiento, Destinatarios: No se cederan los datos, salvo para elaborar contabilidad, Derechos de las personas interesadas: Acceder, rectificar y suprimir los datos, solicitar la portabilidad de los mismos, oponerse altratamiento y solicitar la limitación de éste, Procedencia de los datos: El Propio interesado, Información Adicional: Puede consultarse la información adicional y detallada sobre protección de datos Aquí.

Propriétés similaires

WhatsApp
Demander un rendez-vous