REX-88831
VILLA DE LUXE DE NOUVELLE CONSTRUCTION À MORAIRA
Nouvelle construction Villa de luxe avec les meilleures qualités, et donnant sur la mer, sur un terrain de 1046 m2 avec deux accès piétons et véhicules, l'un à travers la zone commune de l'urbanisation.
La villa est à distance de marche des belles plages et du centre de Moraira.
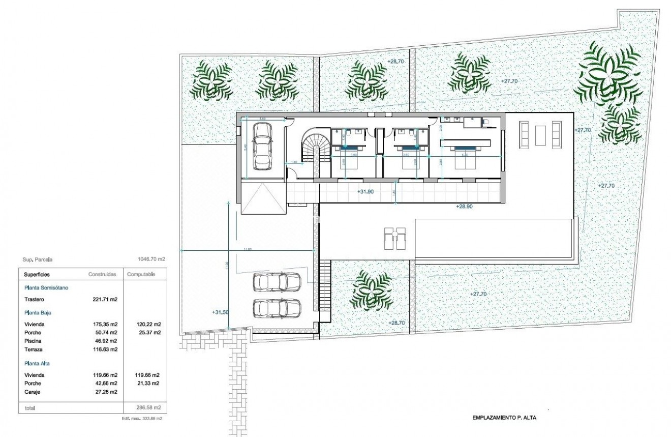
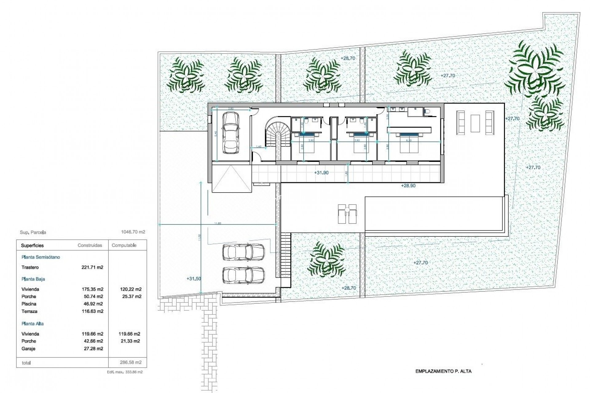
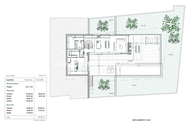
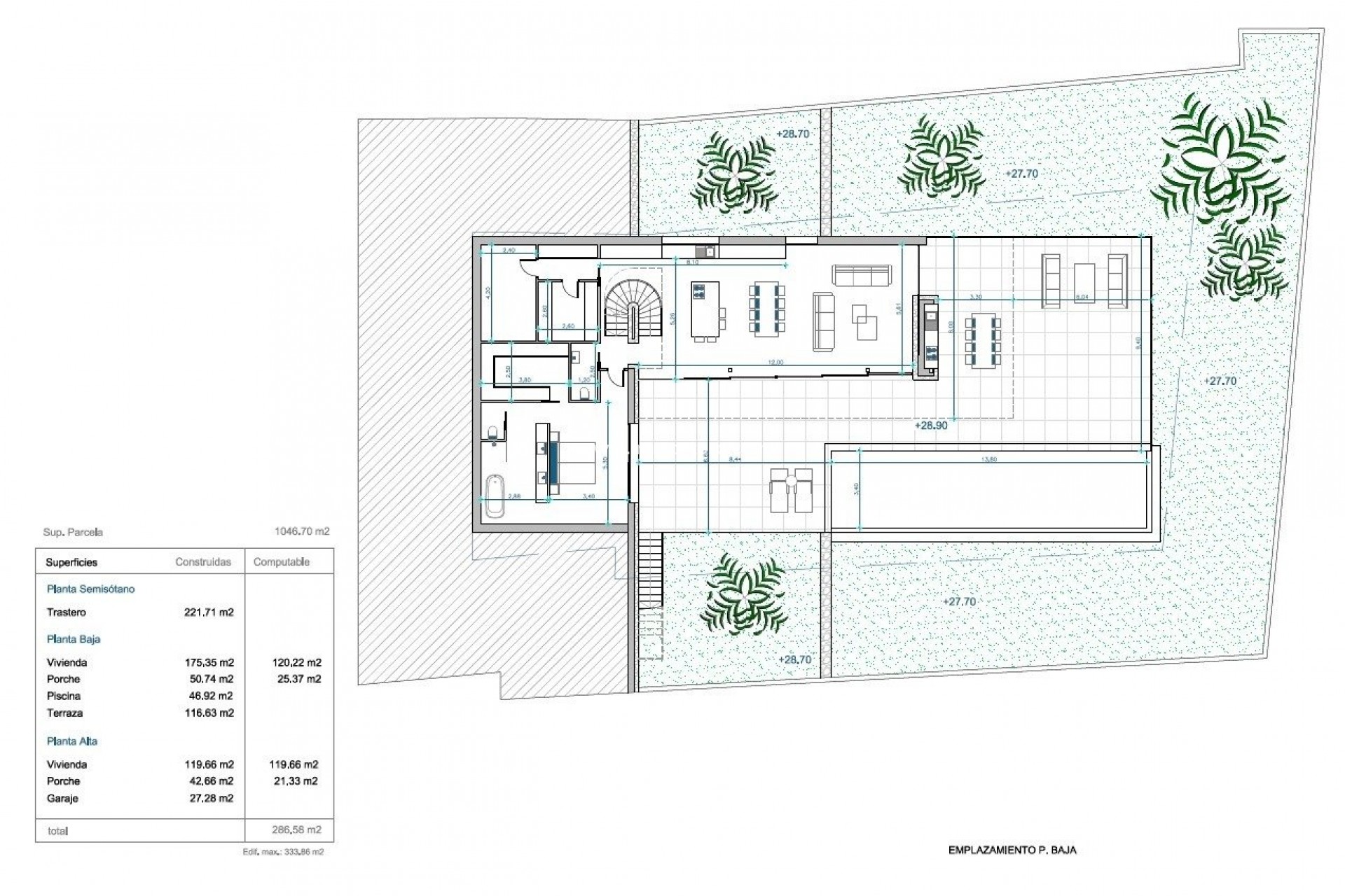
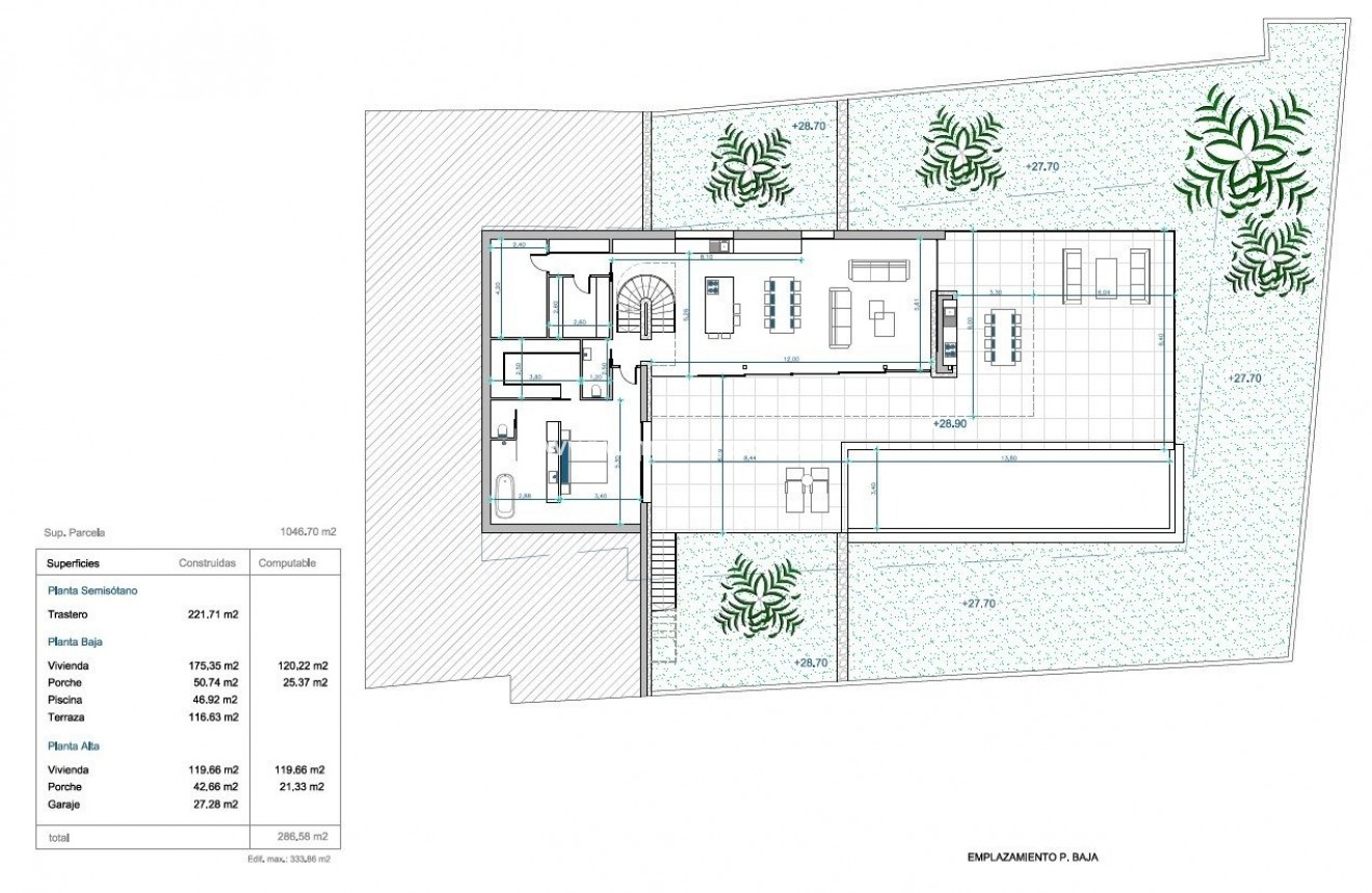
Villa de luxe distribuée sur 3 étages : rez-de-chaussée avec un grand salon lumineux à côté de la cuisine ouverte avec îlot de cuisine, une toilette invités, et une chambre avec salle de bains en suite. A l'extérieur de cet étage se trouve la piscine à débordement, avec une grande terrasse et un espace barbecue.
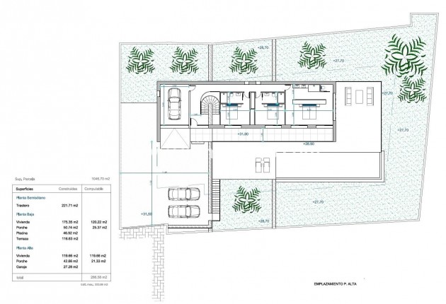
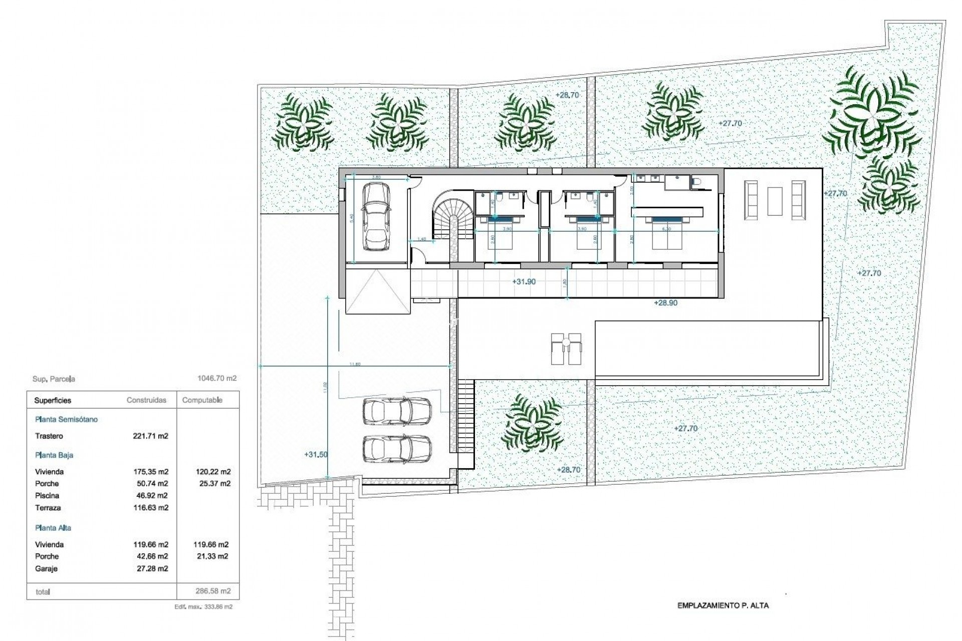
A l'étage supérieur, nous trouvons 3 chambres spacieuses avec leur salle de bain en suite, et leur propre balcon où vous pourrez profiter des belles vues offertes par cette villa. A l'extérieur de cet étage se trouve le garage. Enfin, le sous-sol, nous trouvons une salle de stockage de 221 m2.
EXTRAS : Menuiserie technique avec verre de sécurité, cuisine complète avec appareils Siemens, salles de bains et robinets complets de marque roca, éclairage LED, système aérothermique pour l'eau chaude et le chauffage au sol, conduits de climatisation (chaud et froid) dans toute la maison, panneaux solaires, armoires encastrées, volets électriques, alarme intérieure, pré-installation de l'alarme extérieure et des caméras de sécurité. Piscine rectangulaire avec système de débordement zone de barbecue, buanderie, jardin fini.
Portes d'accès automatiques.
Classification énergétique A.
Orientation sud
Moraira est une petite ville avec de bons restaurants, des bars et de nombreux supermarchés autour.
Il y a une plage très agréable juste à côté de la ville qui est idéal pour les familles.
Le front de mer offre une vue imprenable sur Penon Ifach, de l'autre côté de la baie de Calpe. La route côtière qui y mène vaut la peine d'être parcourue et offre des vues spectaculaires.
Moraira est située à environ 1 heure 15 minutes au nord de l'autoroute A7 depuis l'aéroport d'Alicante et est assez facile d'accès. C'est à peu près la même distance ou un peu moins au sud de l'aéroport de Valence.
Contactez Chantal via Whatsapp ou remplissez le formulaire de contact.