OGC-62334
Villa moderne de luxe à Moraira – Trois niveaux d’élégance
La villa est répartie sur trois étages :
Sous-sol :
Garage pour deux véhicules, débarras, local technique, WC invités, buanderie, salle de sport et escalier intérieur menant au rez-de-chaussée.
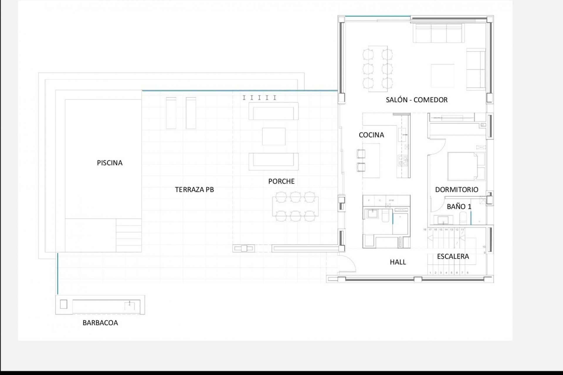
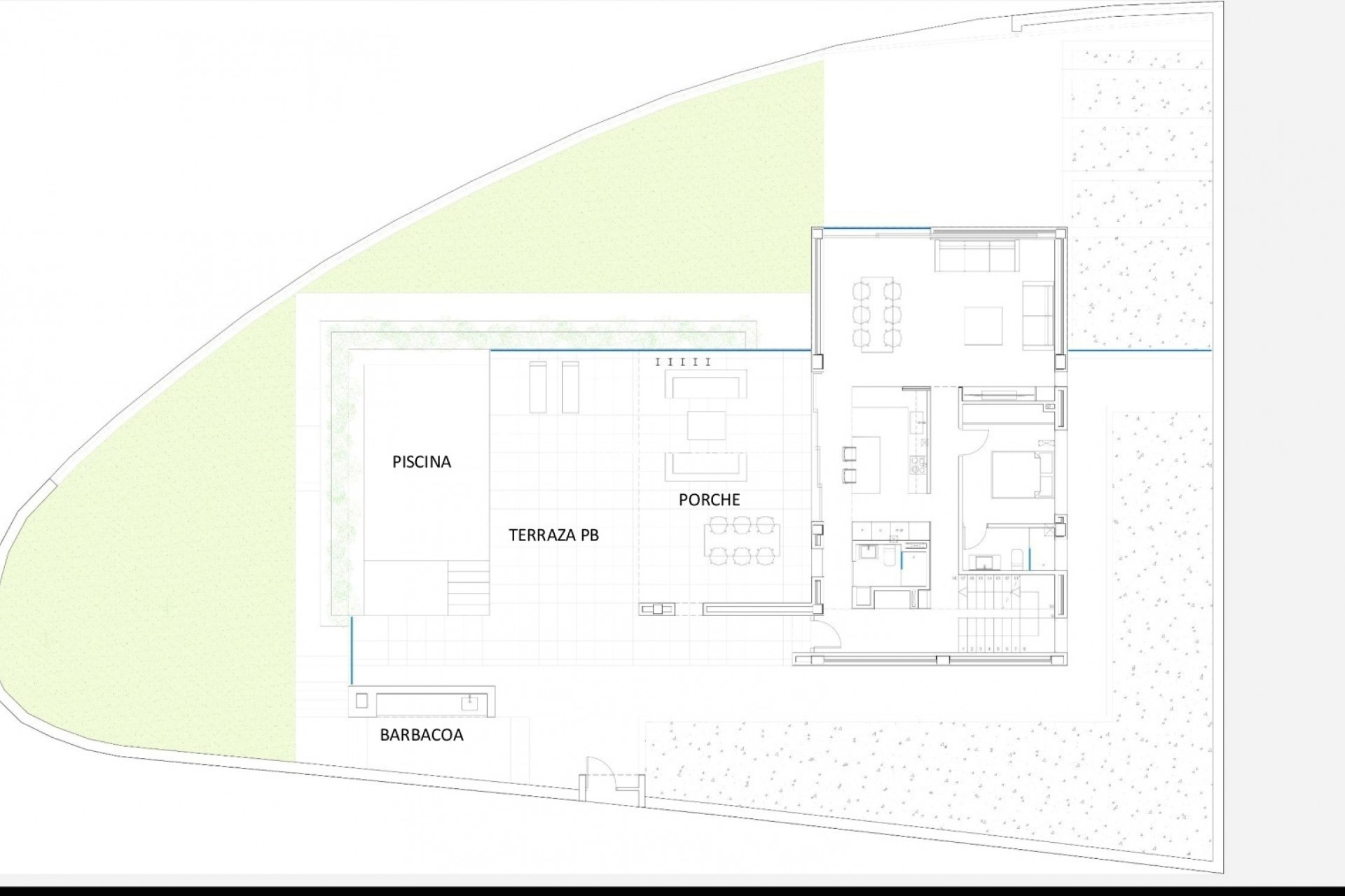
Rez-de-chaussée :
Salon-salle à manger ouvert avec cuisine moderne entièrement équipée, communiquant avec une grande terrasse extérieure avec piscine, barbecue et salle de bain extérieure. À cet étage se trouve également une chambre avec salle de bain en suite.
Étage supérieur :
Trois chambres, dont une suite parentale avec dressing indépendant et grande terrasse, ainsi qu’une salle de bain supplémentaire pour les deux autres chambres.
Climatisation : Système aérothermique pour air chaud/froid, chauffage au sol ou radiateurs dans toute la maison, et production d’eau chaude avec réservoir.
Sécurité : Préinstallation d’alarme, porte d’entrée blindée, vitrages de sécurité, visiophone relié à l’entrée piétonne.
Menuiserie intérieure : Porte d’entrée gris laqué avec serrure de sécurité, portes intérieures blanches mates, armoires encastrées laquées blanches avec intérieur en mélamine imitation bois, équipées d’étagères, tiroirs et penderies.
Cuisine : Meubles design laqués blanc mat, plan de travail en marbre exotique. Électroménagers Siemens inclus : plaque à induction, hotte silencieuse, four, micro-ondes, évier inox intégré avec robinet flexible.
Salles de bain : Appareils sanitaires blancs (Roca Meridian Compact ou similaire), receveurs extraplat en résine blanche, parois en verre trempé anticalcaire, meubles suspendus avec tiroirs, miroirs LED anti-buée, robinetterie chromée, radiateur sèche-serviettes.
Menuiserie extérieure : Aluminium noir laqué de haute qualité avec rupture de pont thermique.
Vitrage : Verre de sécurité Climalit 6+6/14/6/4+4.
Revêtements : Grès cérame gris pour l’intérieur et la terrasse, grès ivoire dans les salles de bain, marbre blanc Macael dans le hall et les escaliers.
Extérieurs : Piscine de 7,9x4 m avec marches intégrées, mosaïque et deux projecteurs LED. Jardin méditerranéen avec arrosage automatique.
Clôture du terrain : Murs en béton, entrée piétonne couverte avec ouverture automatique depuis la maison, portail motorisé et garde-corps en verre trempé 6+6 mm.
Contactez Chantal via Whatsapp ou remplissez le formulaire de contact.