IT - 0507
Moderne nieuwbouwvilla’s in Pinoso (model fontana di trevi-2)
Geniet van luxe en rust in het hart van het Spaanse platteland
Droomt u van een moderne, comfortabele villa te midden van natuur, stilte en de authentieke charme van Spanje? Deze elegante gelijkvloerse villa in Pinoso biedt dat allemaal. Grond niet inbegrepen, vanaf 50.000 euro.
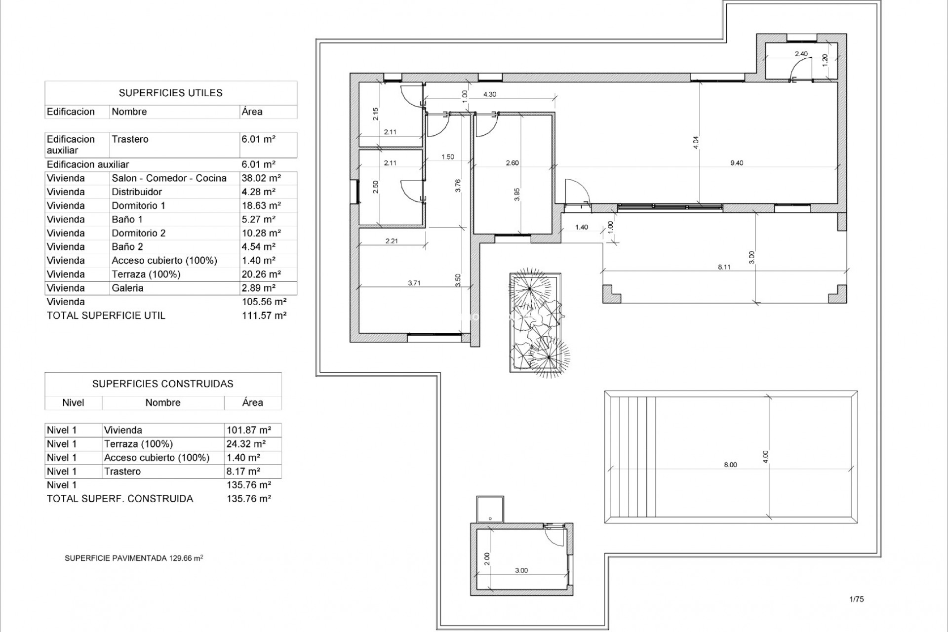
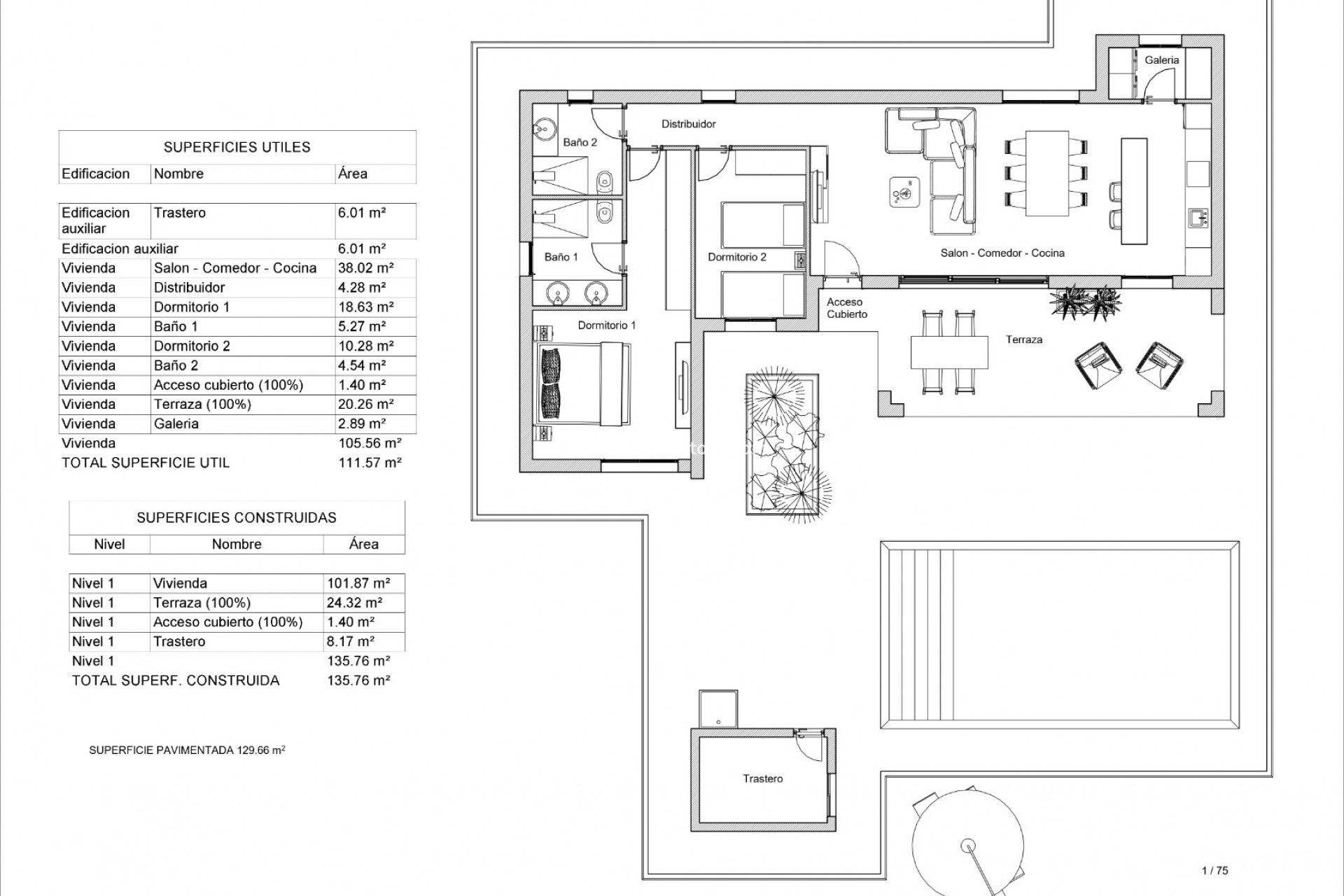
2 ruime slaapkamers en 2 luxe badkamers
Open keuken met kookeiland en lichte woonkamer
Privézwembad (8 x 4 m) met LED-verlichting
Privéparking en automatisch schuifhek
Volledig afgewerkt met hoogwaardige materialen en oog voor detail
Gelegen aan de rand van het charmante dorpje Pinoso (provincie Alicante), op slechts 45 minuten van de stad Alicante en de witte zandstranden van de Costa Blanca. Geniet van een prachtig uitzicht op wijngaarden, olijf- en amandelbomen – met hun beroemde roze bloesems in februari.
Traditionele Spaanse bars, restaurants & lokale winkels
Nieuw medisch centrum (24/7), tandartsen en scholen
Culturele infrastructuur: theater, bibliotheek & gemeenschapsevenementen
Wandelroutes en picknickplaatsen tussen de pijnbomen
Deze villa wordt gebouwd volgens de hoogste normen en uitgerust met moderne technologieën:
Energiezuinige constructie met uitstekende isolatie
Dubbele beglazing met thermische onderbreking & aluminium rolluiken
Volledig uitgeruste keuken met Silestone werkblad en kookeiland
Designbadkamers met inloopdouches en hoogwaardige afwerking
Voorinstallatie van kanaalairco, zonne-energiesysteem en videofoon
Verticaal ventilatiesysteem voor optimale luchtkwaliteit
Buitenzijde: antislip terrassen, betonnen paden, optioneel kunstgras.
Of u nu permanent wilt verhuizen, een vakantiehuis zoekt of een slimme investering wilt doen – deze villa voldoet aan alle wensen. Rust, ruimte, luxe en een uitstekende locatie.
Ontdek vandaag nog deze unieke villa in Pinoso – u zult er meteen voor vallen.
Neem contact op met Chantal via Whatsapp of vul het contactformulier in.