IT-0517
Fantastische Villa met 4 Slaapkamers en 3 Badkamers met Zwembad in Pinoso (model stone plus-4)
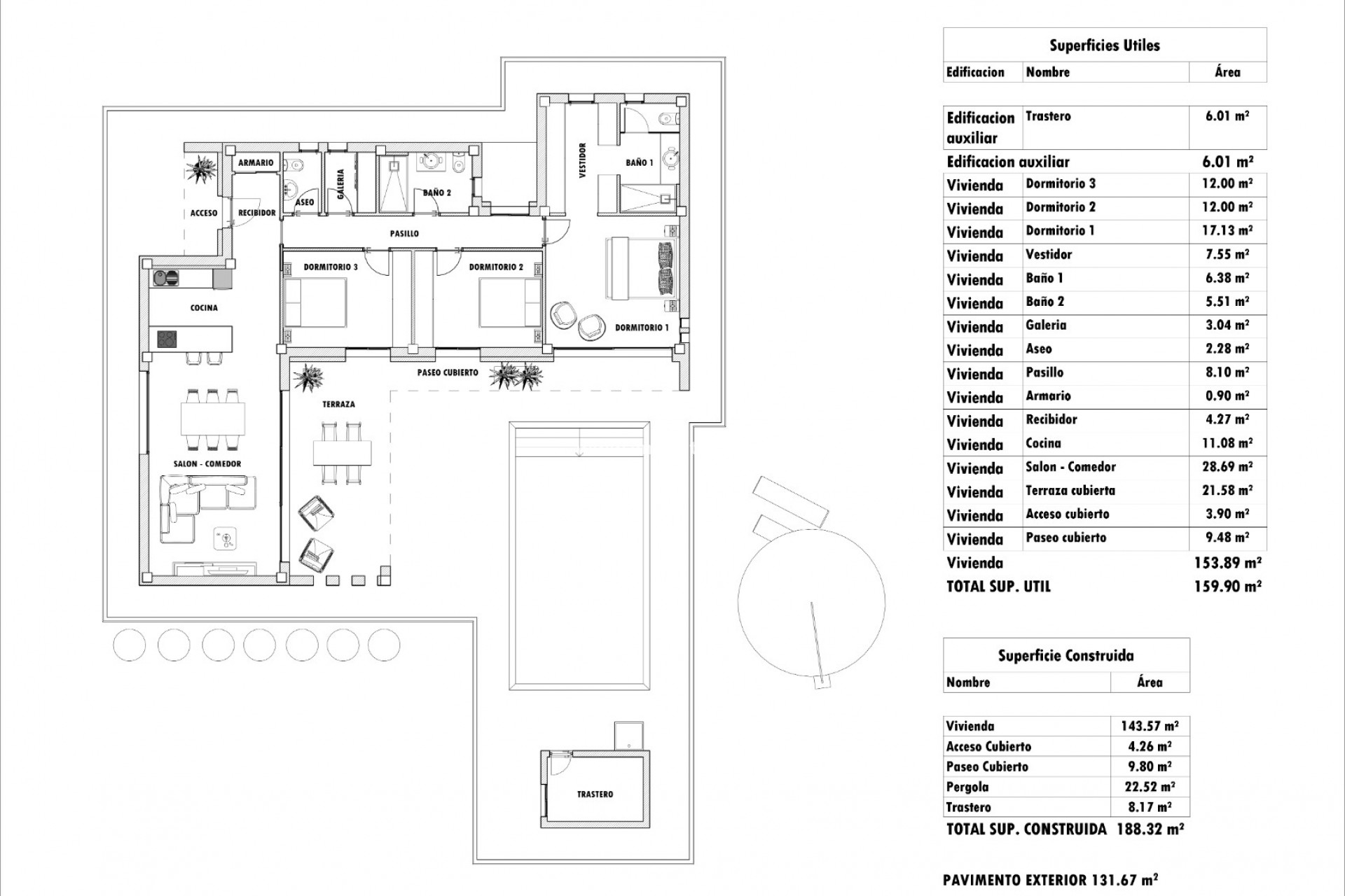
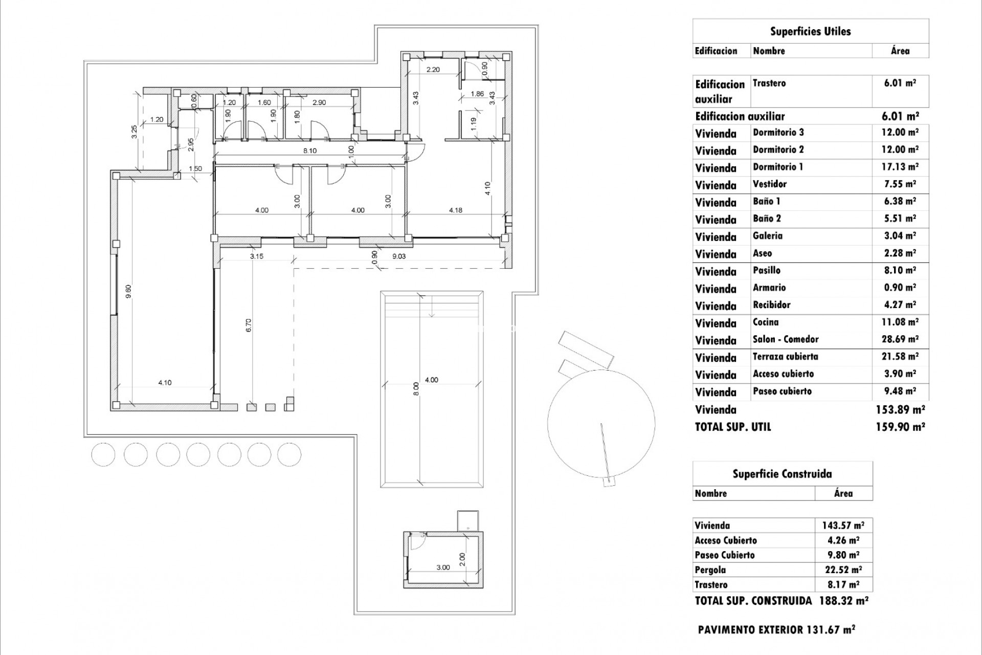
Welkom in deze moderne, luxe villa gelegen in het rustige dorp Pinoso, die een unieke kans biedt om te genieten van een verfijnde levensstijl in het hart van het Spaanse platteland. Met 4 ruime slaapkamers, 3 prachtig ontworpen badkamers en een privézwembad, is deze villa het toppunt van comfort, stijl en duurzaamheid. Grond niet inbegrepen, start vanaf 50.000 euro.
Deze villa is gebouwd volgens de laatste bouwstandaarden en beschikt over:
Fundering en structuur van gewapend beton, wat zorgt voor uitzonderlijke duurzaamheid.
Buitenmuren van thermokeramisch baksteen met uitstekende thermische isolatie, afgewerkt met een elegante natuurstenen gevel en een witte monocouche pleister voor een moderne en verfijnde uitstraling.
Inverted plat dak met hoogwaardige thermische isolatie en waterdichte bescherming.
Betreed de ruime woonkamer die moderne esthetiek perfect balanceert met functionaliteit:
Binnen timmerwerk met wit gelakte deuren, stalen handgrepen en ingebouwde kasten tot aan het plafond, die veel opbergruimte bieden.
Premium porseleinen vloeren, met aanpasbare opties voor een elegante en duurzame afwerking.
Prachtige badkamers met wit vitrified porseleinen sanitaire voorzieningen, elegante chroomkranen en doucheruimtes met vaste glazen schermen.
De keuken is een droom voor elke kookliefhebber, volledig uitgerust om heerlijke gerechten te bereiden:
Keukenunits van hoge kwaliteit, die tot aan het plafond reiken, met vooraf ingestelde ruimtes voor essentiële apparatuur zoals een koelkast, vaatwasser en oven.
Blad in Silestone of vergelijkbaar, met een kookeiland en voorbereid voor de installatie van een afzuigkap.
RVS spoelbak met chroom mengkraan, waardoor koken en schoonmaken gemakkelijker wordt.
Geniet van het prachtige mediterrane klimaat in uw privé buitengedeelte:
Privézwembad (8 x 4 meter) afgewerkt met keramische mozaïektegels, een witte afwerking en LED-verlichting die de perfecte sfeer creëert.
De rondom het zwembad gelegen ruimte is afgewerkt met gedrukt beton en biedt een buitendouche voor extra comfort.
Optioneel kunstgras (ongeveer 15 m²), voor een onderhoudsvriendelijke en mooie ruimte om te ontspannen en te entertainen.
Deze villa is ontworpen met duurzaamheid in gedachten:
Pre-installatie van fotovoltaïsche zonnepanelen voor eigen verbruik op het solarium.
Pre-installatie van airconditioning, met leidingen die al zijn geïnstalleerd voor gemakkelijke plaatsing in de woonkamer en de slaapkamers.
Geavanceerd verticale ventilatiesysteem voor verbeterde energie-efficiëntie en uitstekende luchtkwaliteit binnenshuis.
Warmwater systeem via een 100-liter elektrische boiler.
Videodeurintercom met beeldscherm en voorbereid voor buitenverlichting.
Elektrische toegangspoort voor voertuigen voor gemakkelijke toegang tot het terrein.
Ruime opslagruimte voor de zwembadpomp en andere benodigdheden.
Afvalwaterbeheer via een 3.000 liter septic tank.
Veilig omheining rond het hele perceel met gegalvaniseerd stalen gaas en een automatische schuifpoort voor extra privacy en veiligheid.
Deze villa biedt niet alleen alle moderne gemakken die je je kunt wensen, maar garandeert ook duurzaamheid, energie-efficiëntie en een uitzonderlijke woonervaring in een van de meest gewilde regio's van Spanje.
Neem vandaag nog contact met ons op voor meer informatie of om een bezichtiging te plannen en zelf te zien wat deze prachtige villa in Pinoso te bieden heeft!
Neem contact op met Chantal via Whatsapp of vul het contactformulier in.