IT - 0507
Modern New-Build Villas in Pinoso (model fontana di trevi-2)
Enjoy luxury and peace in the heart of the Spanish countryside
Are you dreaming of a modern, comfortable villa surrounded by nature, tranquility, and the authentic charm of Spain? This elegant single-storey villa in Pinoso offers all that. Land not included, from 50,000 euros.
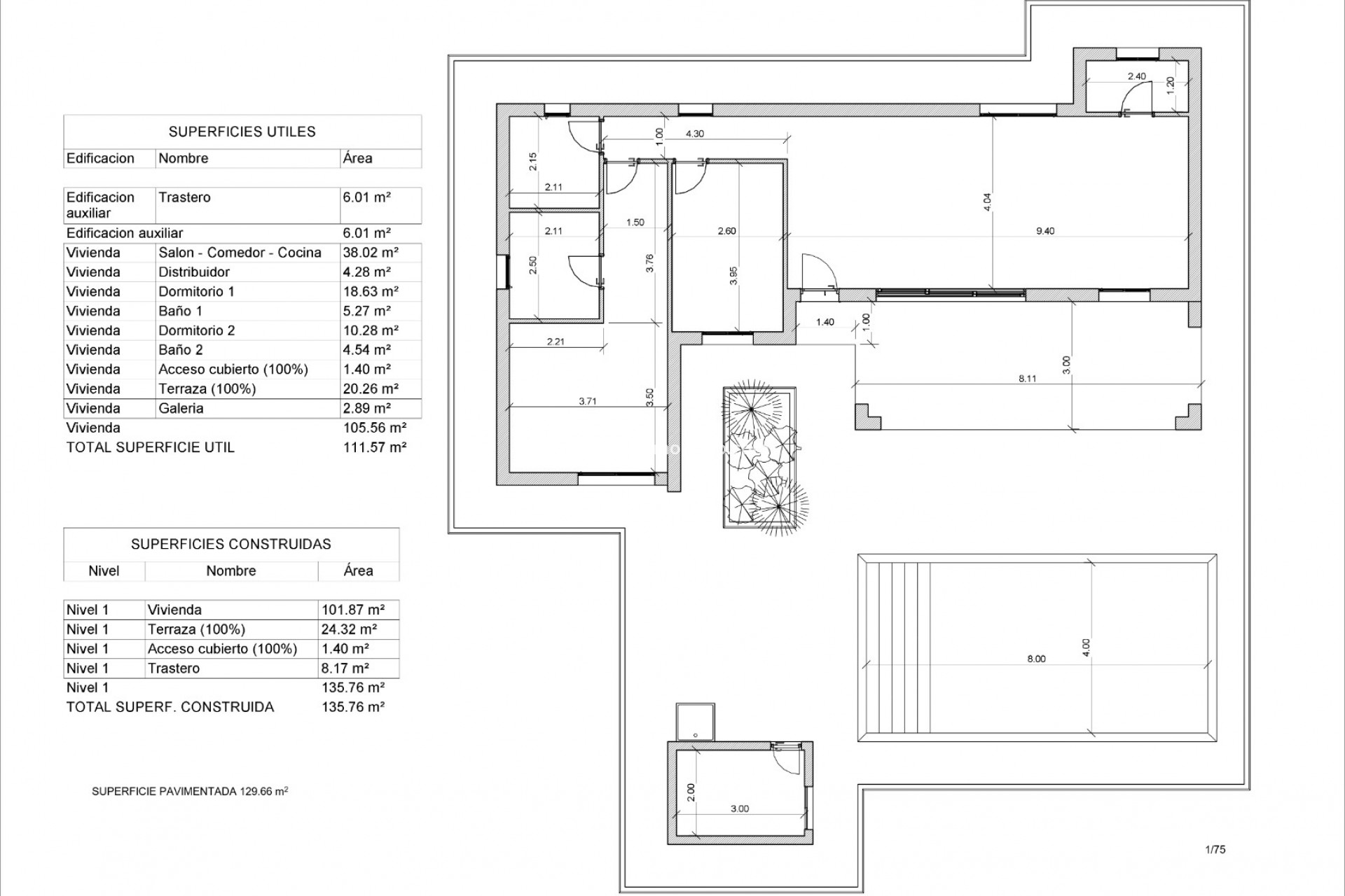
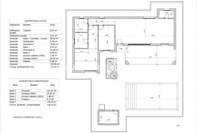
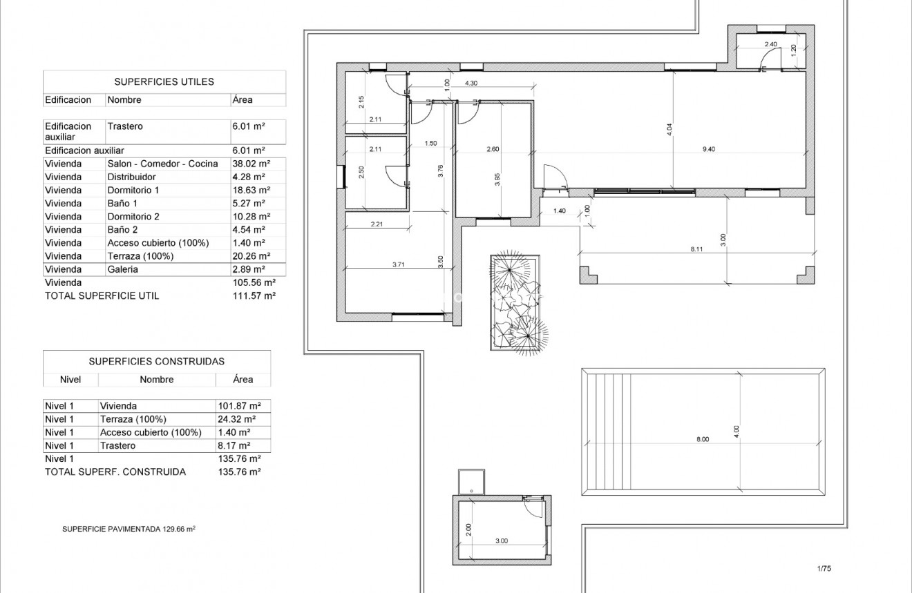
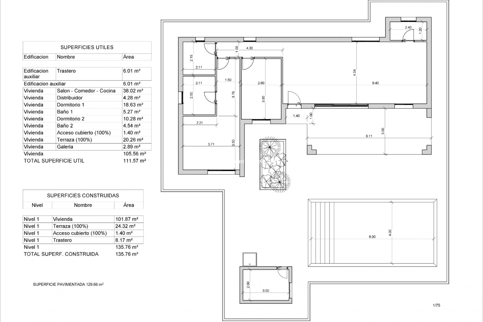
2 spacious bedrooms and 2 luxurious bathrooms
Open-plan kitchen with island and bright living room
Private swimming pool (8 x 4 m) with LED lighting
Private parking and automatic sliding gate
Fully finished with high-quality materials and great attention to detail
Located on the edge of the charming village of Pinoso (Alicante province), just 45 minutes from Alicante city and the white sandy beaches of the Costa Blanca. Enjoy stunning views of vineyards, olive trees, and almond trees – with their famous pink blossoms in February.
Traditional Spanish bars, restaurants & local shops
New 24/7 medical center, dentists, and schools
Cultural infrastructure: theatre, library & community events
Hiking trails and picnic areas among the pine trees
This villa is built to the highest standards and equipped with modern technology:
Energy-efficient construction with excellent insulation
Double glazing with thermal break & aluminum shutters
Fully equipped kitchen with Silestone worktop and central island
Designer bathrooms with walk-in showers and premium finishes
Pre-installation for ducted air conditioning, solar system & videophone
Vertical ventilation system for optimal air quality
Outside: anti-slip terraces, concrete pathways, optional artificial lawn.
Whether you're planning to move permanently, buy a holiday home, or make a smart investment – this villa ticks all the boxes. Peace, space, luxury, and an outstanding location.
Come and discover this unique villa in Pinoso today – it will capture your heart instantly.
Contact Chantal via Whatsapp or fill in the contact form.