IT-0516
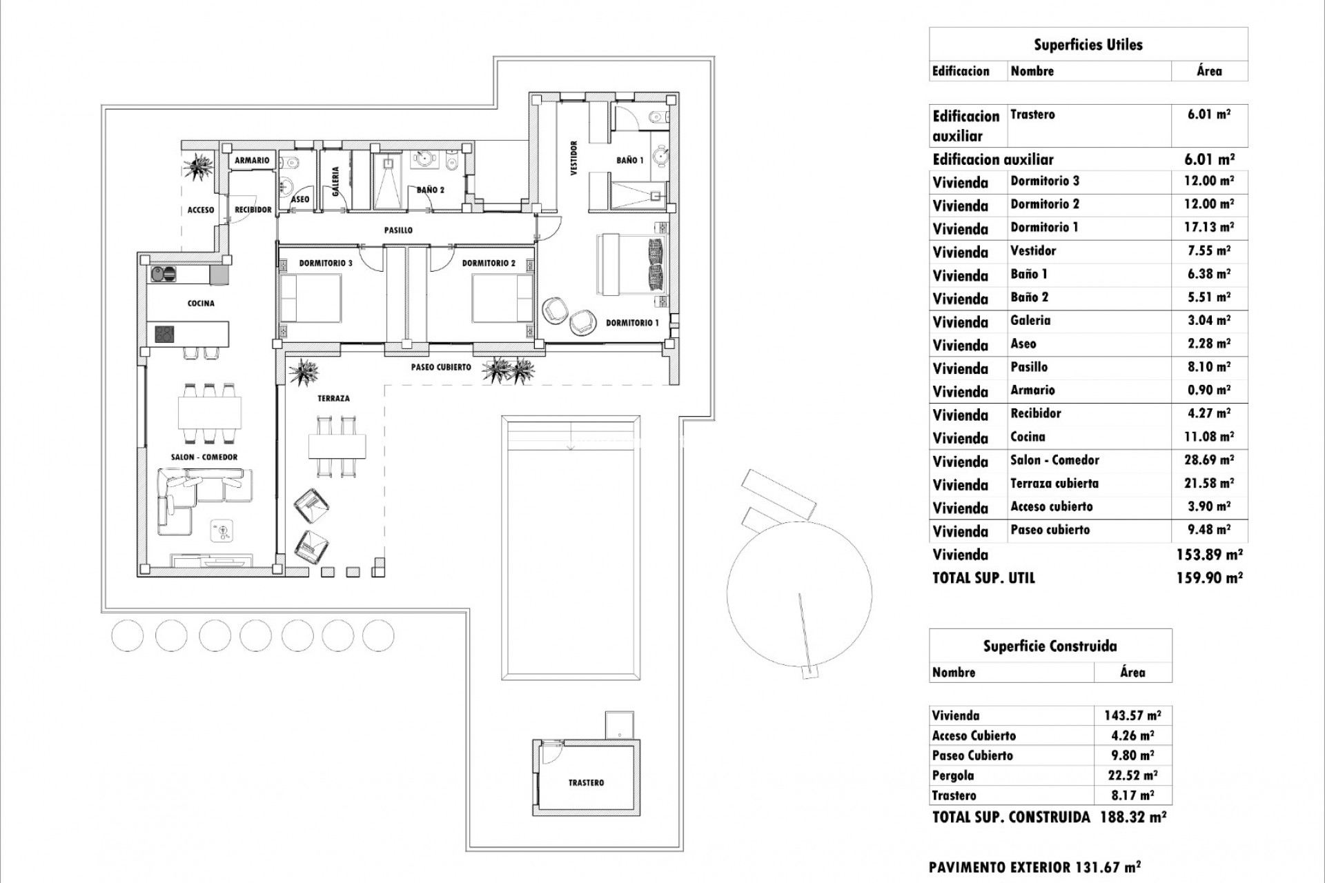
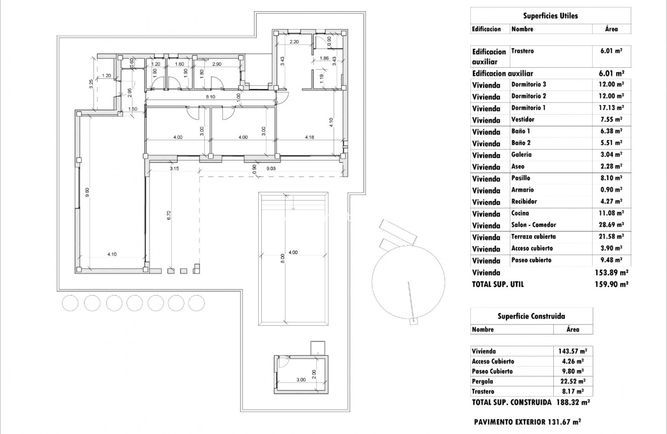
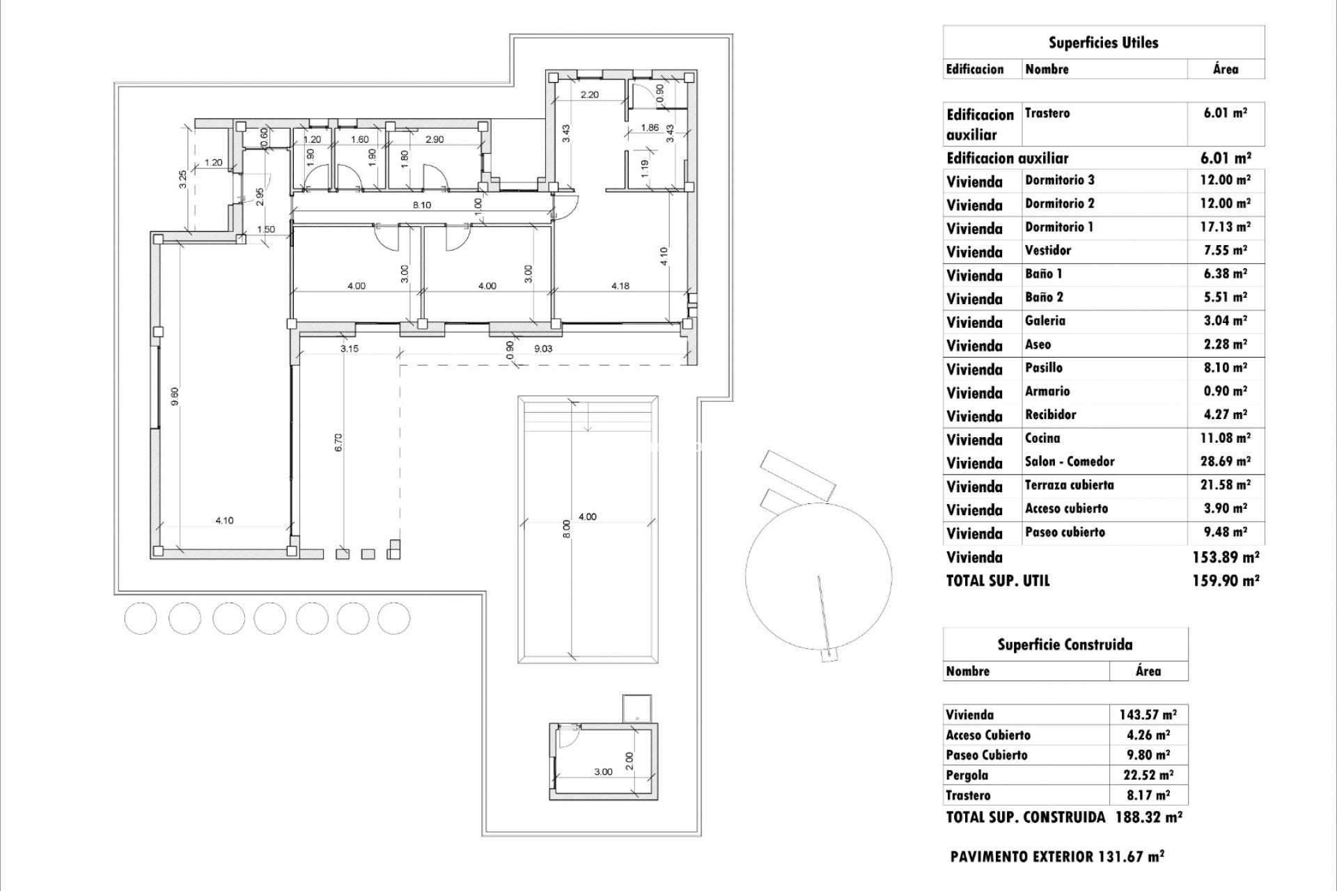
Stunning 3-Bedroom, 3-Bathroom Villa with Private Pool in Pinoso (model stone-3)
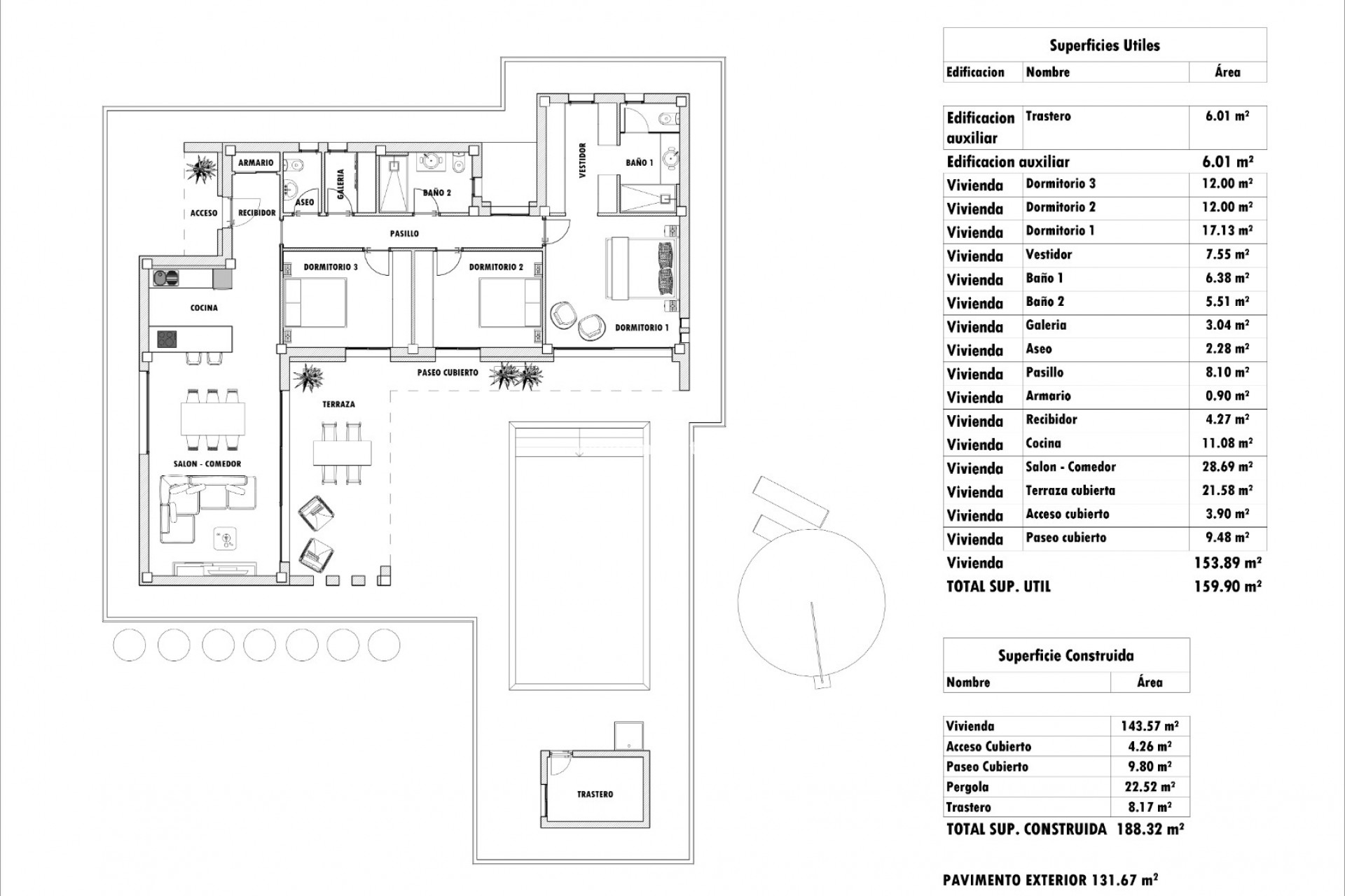
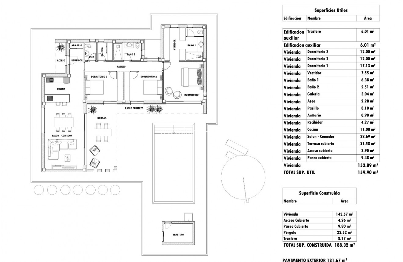
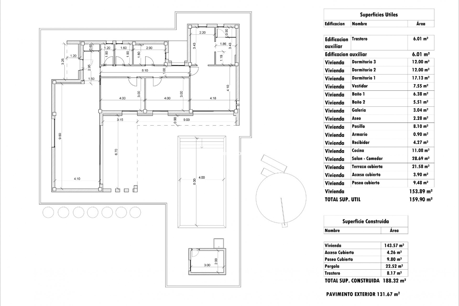
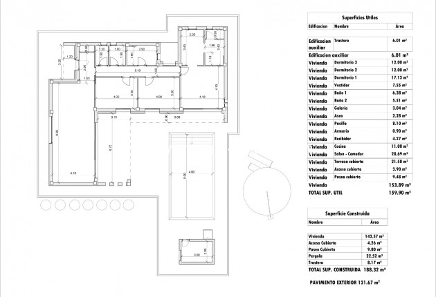
Welcome to this modern, luxury villa located in the tranquil town of Pinoso, offering a unique opportunity to experience sophisticated living in the heart of the Spanish countryside. With 3 spacious bedrooms, 3 beautifully designed bathrooms, and a private swimming pool, this villa is the epitome of comfort, style, and sustainability. The plot is not included, starts from 50,000 euros.
Built with the latest standards in construction, the villa features:
Reinforced concrete foundation and structure, ensuring long-lasting durability.
Thermo-clay brick exterior walls with high thermal insulation, finished with elegant natural stone and modern white monocouche render for a sleek, stylish look.
Inverted flat roof with top-grade thermal insulation and waterproofing.
Step into a spacious living area that perfectly balances modern aesthetics with functionality:
Interior carpentry includes high-quality lacquered white passage doors, sleek steel-colored handles, and built-in wardrobes that reach the ceiling, providing ample storage space.
Premium porcelain stoneware flooring options for a stylish, durable finish.
Sophisticated bathrooms with white vitrified porcelain sanitary fixtures, elegant chrome faucets, and luxurious shower areas with fixed glass screens.
The kitchen is a gourmet's dream, equipped with everything needed to create delicious meals:
High-end kitchen units that reach up to the ceiling, with pre-designated spaces for essential appliances such as a refrigerator, dishwasher, and oven.
Silestone or similar countertop and an island with a pre-installed space for an extractor hood.
A stainless steel sink with a chrome single-lever faucet, making cooking and cleaning a breeze.
Enjoy the beautiful Mediterranean climate in your private outdoor area:
Private swimming pool (8 x 4 meters) finished in stunning mosaic tiles, with a white coping and LED lights that set the perfect ambiance.
The poolside area is finished with printed concrete and includes an outdoor shower for added convenience.
Optional artificial grass area (approximately 15 m²), creating a low-maintenance, beautiful space for relaxation and entertainment.
This villa has been designed with sustainability in mind:
Pre-installation for photovoltaic solar panels for energy self-consumption on the solarium.
Pre-installation for air conditioning, with ducts already in place for easy installation in the living room and bedrooms.
Advanced vertical ventilation system to improve energy efficiency and maintain excellent indoor air quality.
Hot water system via a 100-liter electric heater.
Video intercom with image display and pre-installation for exterior lighting.
Electric vehicle gate for easy access to the property.
Spacious storage room for the pool pump and additional storage needs.
Wastewater management with a 3,000-liter septic tank.
Secure fencing around the entire plot with galvanized steel chain-link mesh and an automatic sliding gate for added privacy and security.
This villa not only provides all the modern comforts you could wish for but also ensures sustainability, energy efficiency, and an outstanding living experience in one of the most sought-after regions in Spain.
Contact us today for more information or to schedule a visit and see for yourself what this incredible villa in Pinoso has to offer!
Contact Chantal via Whatsapp or fill in the contact form.