IT-0514
Villa neuve moderne avec 3 chambres, 2 salles de bains et piscine privée – Confort, design et espace en parfaite harmonie (model palatino)
Découvrez cette magnifique villa contemporaine, alliant matériaux haut de gamme, aménagement fonctionnel et finitions modernes. Un lieu idéal pour vivre à l’année ou passer des vacances en toute sérénité. Terrain non inclus, à partir de 50 000 euros.
Un cadre de vie haut de gamme Conçue selon les normes de construction actuelles, la villa est dotée d’une structure en béton armé et d’une isolation thermique de haute qualité. La façade blanche est sublimée par des éléments en pierre naturelle, ainsi qu’un espace barbecue intégré habillé de carrelage en grès cérame.
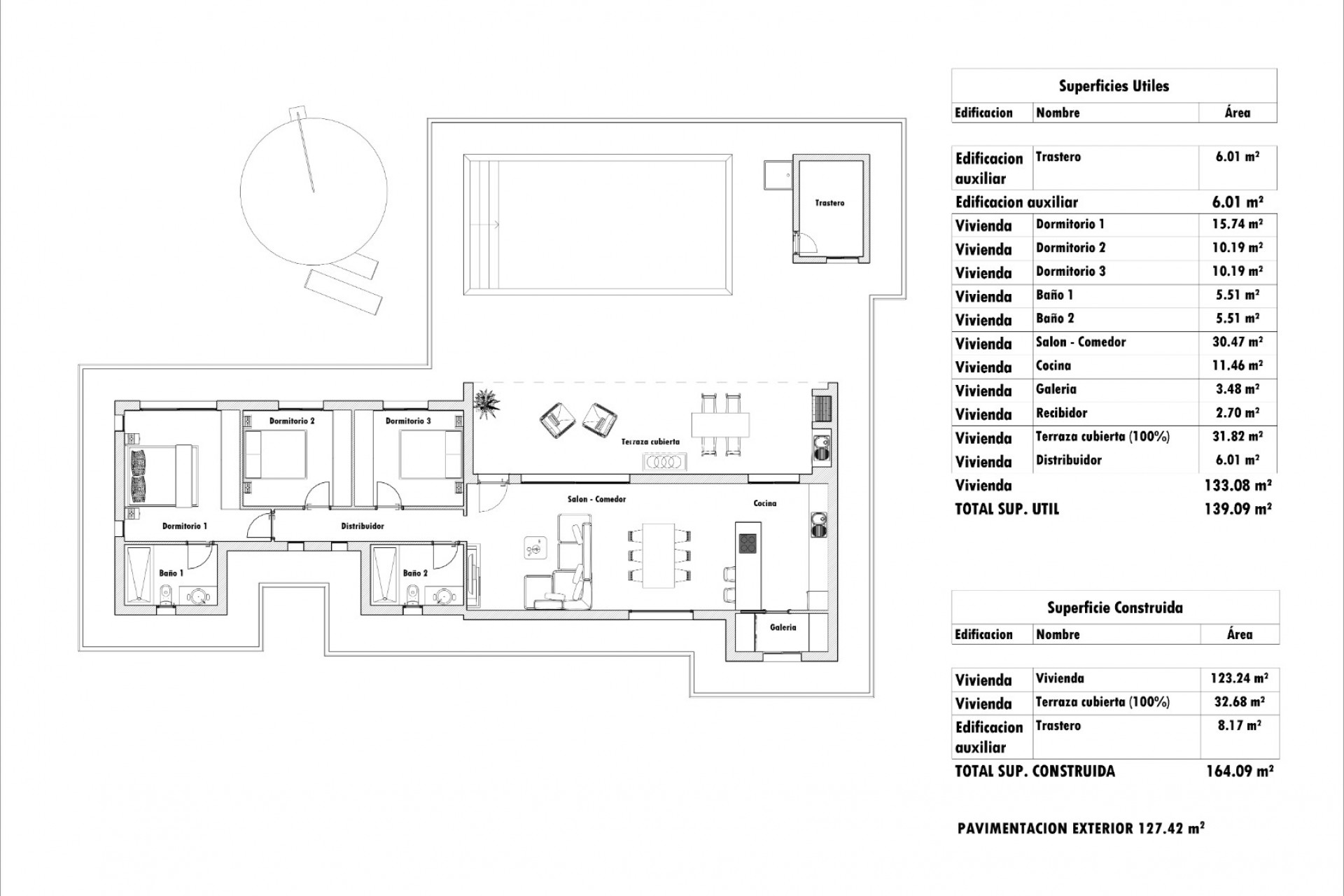
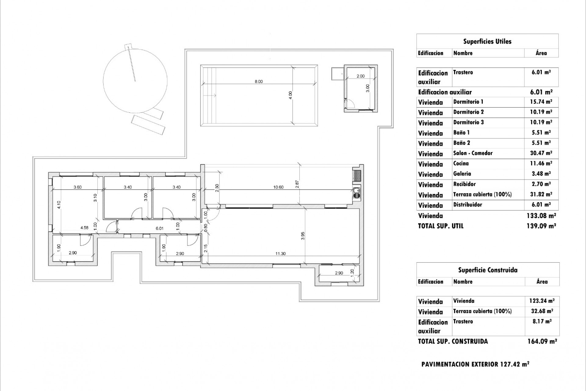
Disposition La maison comprend 3 grandes chambres et 2 salles de bains entièrement équipées, offrant confort et intimité. Les salles de bains sont revêtues de carrelage céramique premium, avec receveurs de douche, parois vitrées fixes, sanitaires modernes, meubles vasques intégrés et miroirs.
Espaces de vie lumineux et modernes La cuisine ouverte est entièrement équipée avec meubles jusqu’au plafond, plan de travail en Silestone (ou équivalent), espace pour îlot central et pré-installation pour hotte. Le salon/salle à manger offre un cadre chaleureux et lumineux, parfait pour recevoir ou se détendre.
Profitez pleinement de l’extérieur À l’extérieur, profitez d’un véritable havre de paix avec une piscine privée de 8 x 4 mètres, finie en mosaïque, éclairée par des LED, avec douche extérieure et local technique. Le pourtour de la piscine est en béton imprimé antidérapant. Un espace barbecue intégré et une zone optionnelle de gazon synthétique d’environ 15 m² complètent l’ensemble.
Technologie et efficacité énergétique Cette villa est prête pour le futur, avec des installations pensées pour le confort et l’économie d’énergie :
Pré-installation de climatisation gainable (chaud/froid)
Chauffe-eau électrique de 100 litres
Vidéophone avec écran couleur
Pré-installation pour panneaux solaires photovoltaïques
Système de ventilation verticale pour une meilleure performance énergétique
Autres prestations incluses :
Menuiserie extérieure en aluminium noir avec rupture de pont thermique et double vitrage Climalit
Peinture blanche mate lisse sur murs et plafonds
Placards encastrés jusqu’au plafond, aménagés avec tiroirs et tringles
Portail automatique pour véhicules et murs décoratifs
Clôture complète du terrain avec grillage galvanisé (environ 2.500 m²)
Deux points d’eau extérieurs
Ne manquez pas l’opportunité d’acquérir une villa élégante, moderne et éco-efficiente dans un cadre naturel et paisible. Contactez-nous dès aujourd’hui pour plus d’informations ou pour planifier une visite. Nous serons ravis de vous accompagner.
Contactez Chantal via Whatsapp ou remplissez le formulaire de contact.