IT-0517
Magnifique Villa avec 4 Chambres et 3 Salles de Bain avec Piscine à Pinoso (model stone-4)
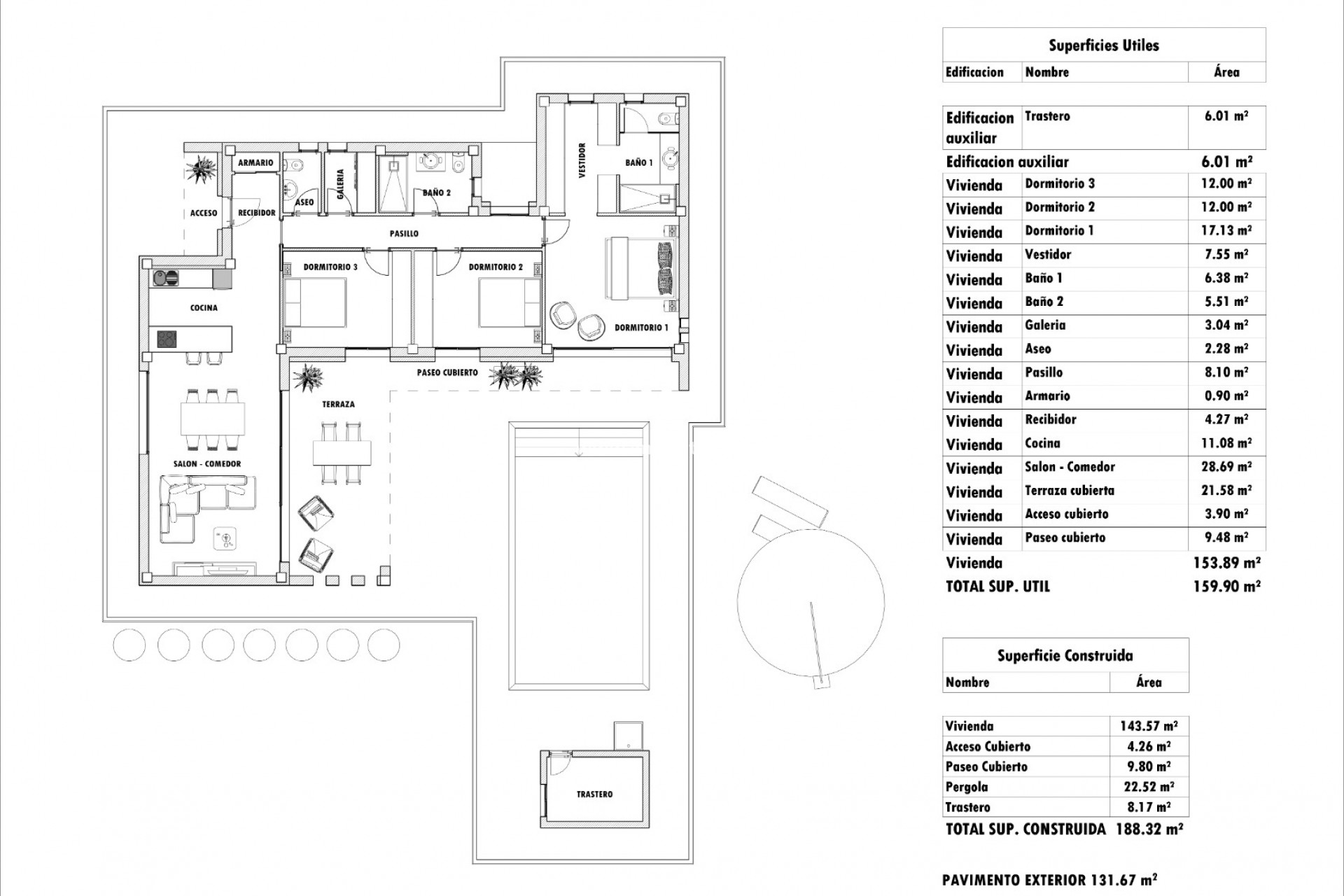
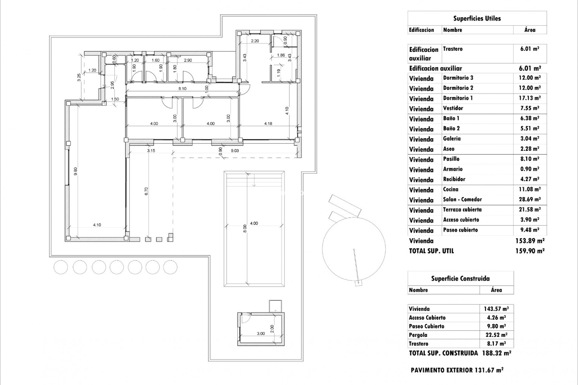
Bienvenue dans cette villa moderne et luxueuse située dans le paisible village de Pinoso, offrant une opportunité unique de profiter d'un style de vie raffiné au cœur de la campagne espagnole. Avec 4 chambres spacieuses, 3 salles de bain magnifiquement conçues et une piscine privée, cette villa représente le summum du confort, du style et de la durabilité. Terrain non inclus, à partir de 50 000 euros.
Cette villa est construite selon les dernières normes de construction et offre :
Fondation et structure en béton armé, garantissant une durabilité exceptionnelle.
Murs extérieurs en brique thermo-argile avec une excellente isolation thermique, finis avec une façade en pierre naturelle et un enduit monocouche blanc pour une apparence moderne et raffinée.
Toit plat inversé avec une isolation thermique de haute qualité et une protection étanche.
Entrez dans le spacieux salon qui allie parfaitement esthétique moderne et fonctionnalité :
Menuiseries intérieures avec portes laquées blanches, poignées couleur acier et placards intégrés jusqu'au plafond, offrant un grand espace de rangement.
Revêtements de sol en porcelaine haut de gamme, avec des options personnalisables pour un fini élégant et durable.
Superbes salles de bain avec des installations sanitaires en porcelaine vitrifiée blanche, des robinets chromés élégants et des douches avec parois vitrées fixes.
La cuisine est un rêve pour tout amateur de cuisine, entièrement équipée pour préparer de délicieux repas :
Meubles de cuisine de haute qualité, allant jusqu’au plafond, avec des espaces prévus pour les appareils électroménagers essentiels tels que le réfrigérateur, le lave-vaisselle et le four.
Plan de travail en Silestone ou similaire, avec un îlot central et préparation pour l'installation d’une hotte.
Évier en inox avec robinet mélangeur chromé, facilitant la cuisine et le nettoyage.
Profitez du climat méditerranéen dans votre espace extérieur privé :
Piscine privée (8 x 4 mètres) avec carrelage en mosaïque, finition blanche et éclairage LED créant une atmosphère parfaite.
L’espace autour de la piscine est fini en béton imprimé, et une douche extérieure est incluse pour plus de confort.
Optionnel : herbe artificielle (environ 15 m²), pour un espace de détente facile à entretenir.
Cette villa a été conçue dans un souci de durabilité :
Pré-installation de panneaux photovoltaïques pour l'autoconsommation sur le solarium.
Pré-installation de la climatisation, avec conduits déjà installés pour un placement facile dans le salon et les chambres.
Système de ventilation vertical pour améliorer l'efficacité énergétique et garantir une excellente qualité de l’air intérieur.
Système d'eau chaude via un chauffe-eau électrique de 100 litres.
Interphone vidéo avec écran et préparation pour l’éclairage extérieur.
Portail d'accès électrique pour véhicules, offrant une facilité d’accès à la parcelle.
Spacieuse pièce de stockage pour la pompe de la piscine et autres équipements.
Gestion des eaux usées via une fosse septique de 3 000 litres.
Clôture sécurisée autour de toute la parcelle avec un grillage en acier galvanisé et un portail coulissant automatique pour plus de confidentialité et de sécurité.
Cette villa offre non seulement toutes les commodités modernes que vous pouvez souhaiter, mais elle garantit également durabilité, efficacité énergétique et une expérience de vie exceptionnelle dans l'une des régions les plus recherchées d'Espagne.
Contactez-nous dès aujourd'hui pour plus d'informations ou pour planifier une visite et découvrir par vous-même tout ce que cette magnifique villa à Pinoso a à offrir !
Contactez Chantal via Whatsapp ou remplissez le formulaire de contact.