IT-0515
Villa Moderne de Luxe avec 3 Chambres et 3 Salles de Bains avec Piscine Privée à Pinoso (model plaza espana)
Découvrez cette villa impressionnante neuve située à Pinoso : une parfaite fusion de design contemporain, de finitions de haute qualité et d'efficacité énergétique. Le terrain n'est pas inclus, à partir de 50 000 euros.
Design Élégant et Construction de Haute Qualité Construite selon les normes structurelles actuelles, la villa bénéficie d'une fondation en béton armé et d'une façade en monocouche blanc avec des sections en pierre naturelle. Chaque détail a été soigneusement conçu pour offrir confort et style moderne.
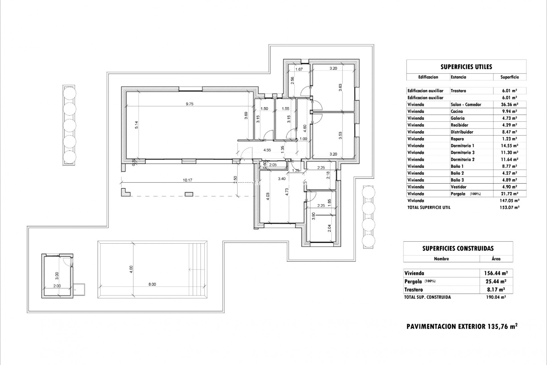
Espaces Spacieux et Lumineux La maison comprend 3 chambres spacieuses et 3 salles de bains complètes, équipées de carrelages en céramique haut de gamme, de sanitaires en porcelaine vitrifiée, de cabines de douche avec parois fixes, de robinetterie chromée monocommande et de meubles de salle de bain avec lavabo intégré et miroir.
Confort et Fonctionnalité La cuisine est entièrement équipée avec des armoires allant jusqu'au plafond, un plan de travail en Silestone ou similaire, un espace pour une île centrale et des appareils électroménagers, ainsi que la préinstallation pour une hotte aspirante. Le salon-salle à manger s'ouvre directement sur la terrasse extérieure, idéale pour profiter du climat méditerranéen.
Vie en Plein Air Détendez-vous dans votre piscine privée de 8 x 4 mètres, finie en carrelage mosaïque, avec un bord blanc et des lumières LED. Le périmètre de la piscine en béton imprimé, une zone de gazon artificiel en option et un local technique avec douche extérieure simplifient l'entretien et sont pratiques.
Durabilité et Efficacité Énergétique
Préinstallation de climatisation avec pompe à chaleur (froid/chaud)
Système d'eau chaude sanitaire (ECS) via un chauffe-eau électrique de 100 litres
Préinstallation pour des panneaux solaires photovoltaïques
Système de ventilation vertical pour améliorer l'efficacité énergétique et la qualité de l'air
Solutions de construction écologiques pour un confort supérieur et une consommation réduite
Autres Caractéristiques Remarquables :
Porte d'entrée renforcée et menuiserie extérieure en aluminium noir avec rupture de pont thermique
Placards encastrés allant jusqu'au plafond avec intérieur revêtu de bois
Peinture plastique mate sur les murs et les plafonds
Prises TV et données dans toutes les chambres, salon et pergola
Vidéophone avec affichage d'image et installation pour éclairage extérieur
Portail automatique pour l'accès des véhicules et clôture frontale avec murs en gabions
Terrain entièrement clôturé avec grillage métallique galvanisé
Deux points d'eau extérieurs sur la parcelle
Une opportunité unique de vivre avec style, confort et efficacité dans un cadre naturel privilégié. Située à proximité du charmant village de Pinoso, avec tous les services nécessaires à quelques minutes, cette villa est idéale comme résidence principale, maison de vacances ou investissement sûr.
Contactez-nous dès aujourd'hui pour plus d'informations ou pour planifier une visite. Nous serons ravis de vous accompagner tout au long du processus !
Contactez Chantal via Whatsapp ou remplissez le formulaire de contact.